EasyManua.ls Logo

Danfoss VLT HVAC Drive FC 102 - Page 276

Danfoss VLT HVAC Drive FC 102
370 pages
Print Icon
To Next Page IconTo Next Page
To Next Page IconTo Next Page
To Previous Page IconTo Previous Page
To Previous Page IconTo Previous Page
Loading...
1
2
3
4
5
6
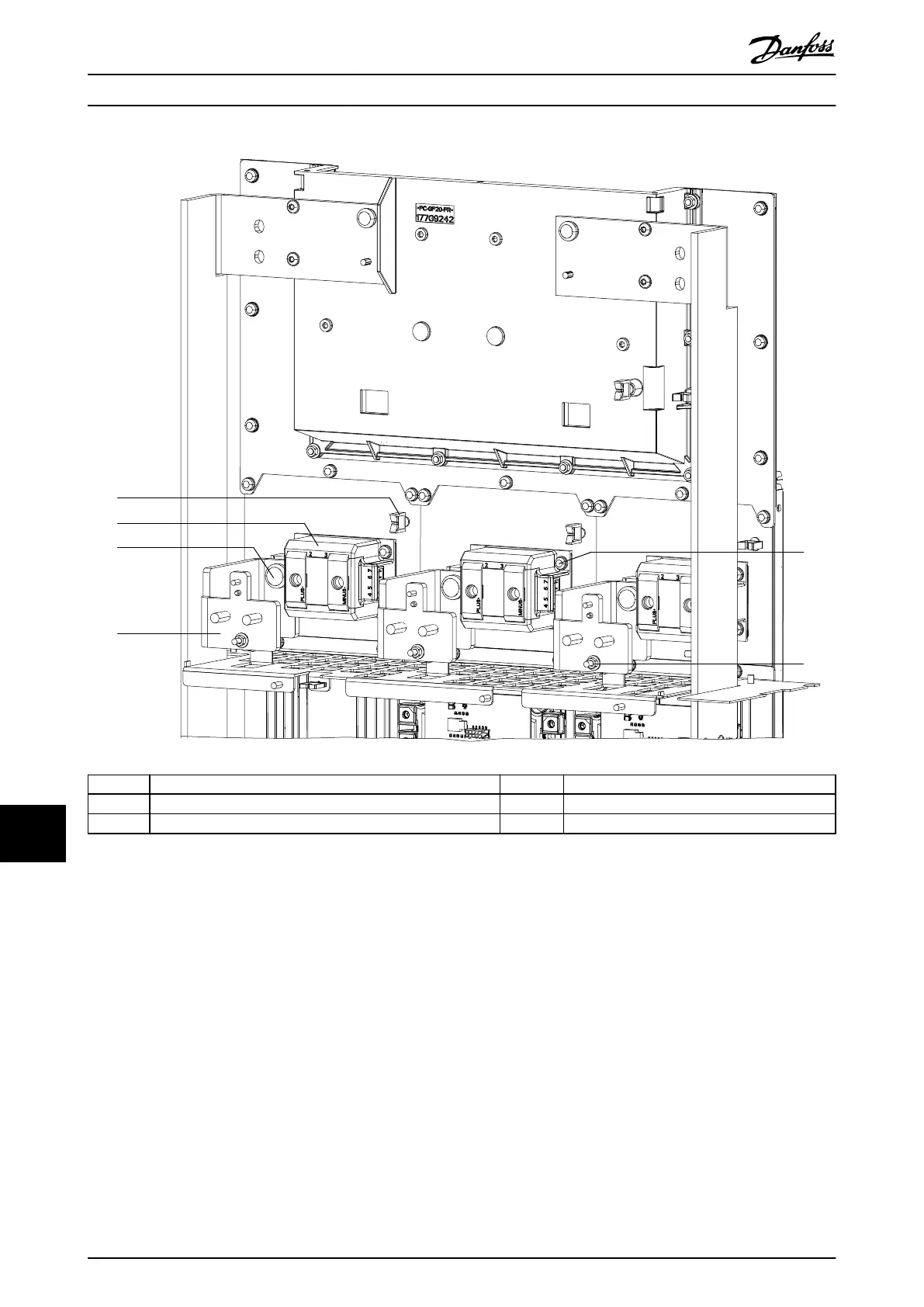
130BF844.10
1 Cable retaining clip 4 SCR input busbar
2 SCR/diode module 5 Screw (T25)
3 Screw (T40) 6 Nut (8 mm)
Illustration 13.7 SCR/Diode Modules
E1h–E4h Drive Disassembly a...
VLT
®
FC Series, D1h–D8h, Da2/Db2/Da4/Db4, E1h–E4h, J8/J9
274 Danfoss A/S © 02/2019 All rights reserved. MG94A502
1313

Table of Contents

Other manuals for Danfoss VLT HVAC Drive FC 102

Related product manuals