EasyManua.ls Logo

Danfoss VLT HVAC Drive FC 102 - Page 282

Danfoss VLT HVAC Drive FC 102
370 pages
Print Icon
To Next Page IconTo Next Page
To Next Page IconTo Next Page
To Previous Page IconTo Previous Page
To Previous Page IconTo Previous Page
Loading...
1
2
3
4
5
6
7
8
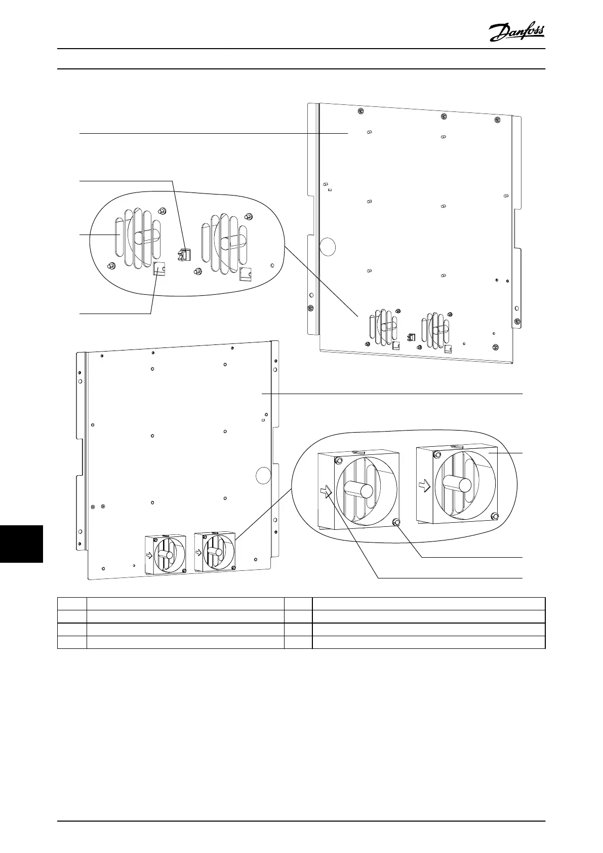
130BF775.10
1 Upper input plate (front view, with options not shown) 5 Upper input plate (back view)
2 Cable retaining clip 6 Mixing fan
3 Mixing fan vent 7 Screw (T20)
4 Cable access hole 8 Alignment arrow
Illustration 13.10 E1h/E3h Input Plate Mixing Fan (E2h/E4h is Similar).
E1h–E4h Drive Disassembly a...
VLT
®
FC Series, D1h–D8h, Da2/Db2/Da4/Db4, E1h–E4h, J8/J9
280 Danfoss A/S © 02/2019 All rights reserved. MG94A502
1313

Table of Contents

Other manuals for Danfoss VLT HVAC Drive FC 102

Related product manuals