EasyManua.ls Logo

Danfoss VLT HVAC Drive FC 102 - Page 296

Danfoss VLT HVAC Drive FC 102
370 pages
Print Icon
To Next Page IconTo Next Page
To Next Page IconTo Next Page
To Previous Page IconTo Previous Page
To Previous Page IconTo Previous Page
Loading...
1
2
130BF838.10
4
5
7
6
3
9
10
8
11
12
13
14
15
16
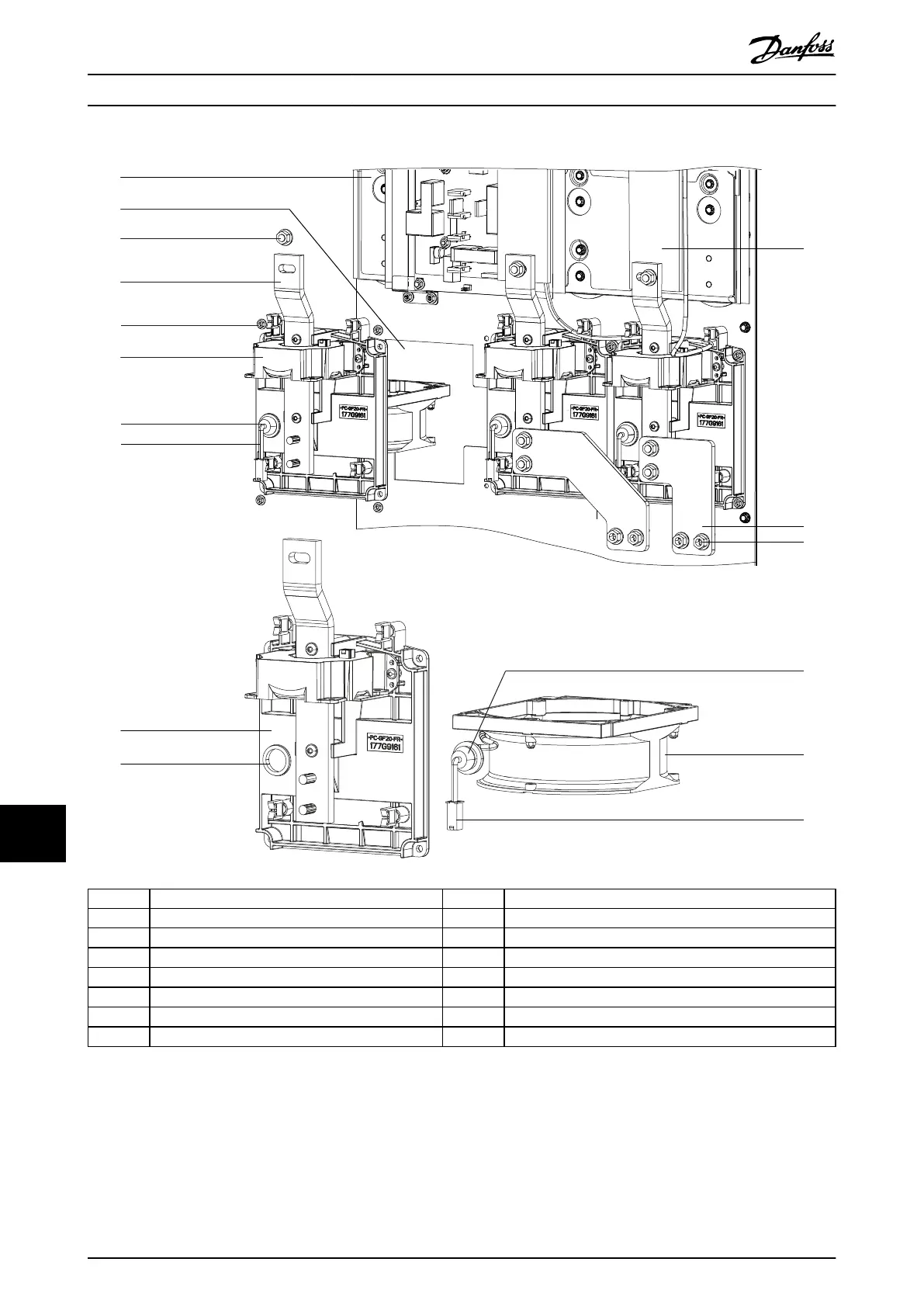
1 DC capacitor bank 9 Heat sink fan housing
2 Fan cutout 10 Hole for fan grommet
3 Nut (13 mm) 11 IGBT output busbar
4 Current sensor busbar 12 Right motor busbar
5 Nut (8 mm) 13 Nut (13 mm)
6 Current sensor 14 Fan grommet
7 Fan grommet (installed in fan housing) 15 Heat sink fan
8 Fan cable heat sink fan 16 Fan cable connector
Illustration 13.17 Heat Sink Fan (Shown with Left Motor Busbar Removed)
E1h–E4h Drive Disassembly a...
VLT
®
FC Series, D1h–D8h, Da2/Db2/Da4/Db4, E1h–E4h, J8/J9
294 Danfoss A/S © 02/2019 All rights reserved. MG94A502
1313

Table of Contents

Other manuals for Danfoss VLT HVAC Drive FC 102

Related product manuals