EasyManua.ls Logo

Danfoss VLT HVAC Drive FC 102 - Page 360

Danfoss VLT HVAC Drive FC 102
370 pages
Print Icon
To Next Page IconTo Next Page
To Next Page IconTo Next Page
To Previous Page IconTo Previous Page
To Previous Page IconTo Previous Page
Loading...
etalp poT
BRF
Microswitch
Connector
TB11
FOR DC FUSE
Regen -
Regen +
yaleR remotsuC
POWER CARD PCA2
INRUSH PCA4
GATEDRIVE PCA5
L1
DC INDUCTOR
BAL/HF
PCA7
IGBT1
TB4
TB2
IGBT2 IGBT3BRAKE IGBT
MODULE
IGBT4
TOP FAN (IP20)
DOOR FAN (IP54)
F3
MIXING FAN
CBANK 1
TB1
FUSE OPTION
F1
130BF087.10
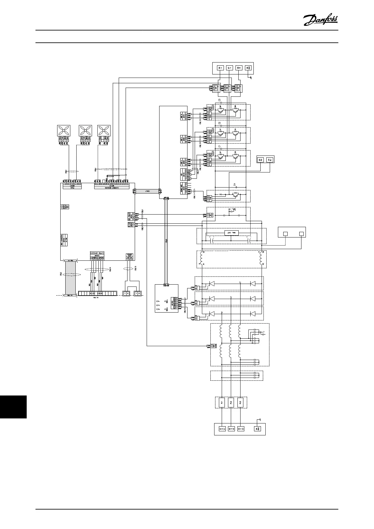
Illustration 16.3 Internal Block Diagram of Parallel Drive Module
Block Diagrams
VLT
®
FC Series, D1h–D8h, Da2/Db2/Da4/Db4, E1h–E4h, J8/J9
358 Danfoss A/S © 02/2019 All rights reserved. MG94A502
1616

Table of Contents

Other manuals for Danfoss VLT HVAC Drive FC 102

Related product manuals