EasyManua.ls Logo

Danfoss VLT HVAC Drive FC 102 - Page 53

Danfoss VLT HVAC Drive FC 102
370 pages
Print Icon
To Next Page IconTo Next Page
To Next Page IconTo Next Page
To Previous Page IconTo Previous Page
To Previous Page IconTo Previous Page
Loading...
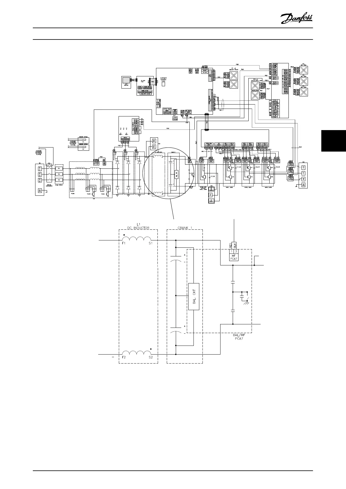
130BF934.10
POWER CARD PCA2
FAN POWER CARD
INRUSH CARD PCA4
GATEDRIVE CARD PCA5
Illustration 5.8 Intermediate Section in E-sized Drives
Internal Drive Operation Service Guide
MG94A502 Danfoss A/S © 02/2019 All rights reserved. 51
5 5

Table of Contents

Other manuals for Danfoss VLT HVAC Drive FC 102

Related product manuals