EasyManua.ls Logo

Danfoss VLT HVAC Drive FC 102 - Page 55

Danfoss VLT HVAC Drive FC 102
370 pages
Print Icon
To Next Page IconTo Next Page
To Next Page IconTo Next Page
To Previous Page IconTo Previous Page
To Previous Page IconTo Previous Page
Loading...
130BX499.10
+ M -
CT1
1 6 10 5
PCA9
1 2
NTC1
1 6 10 5
PCA10
1 2
NTC2
1 6
10
5
PCA11
1 2
NTC3
+ M -
CT2
+
M
-
CT3
C1 C2 C3
96
U
97
V
98
W
TB2
RED
WHT
BLK
UP
UN
IGBT1
WHT
BLK
BLK
RED
BLK
RED
VP
VN
IGBT2
WHT
BLK
BLK
RED
BLK
RED
WP
WN
IGBT3
WHT
BLK
BLK
RED
BLK
RED
RED
WHT
BLK
RED
WHT
BLK
99
GND
CBL12
CBL13 CBL13 CBL13
RS485
616869
ANALOG INPUTS
394250535455
DIGITAL INPUTS
12131819272932 332037
2 1
+
M
-
CT1
1 3
RFI PCA6
1
3
HF PCA7
MK1802
K1G1
K2
G2K3G3
1 4 2 5 3 6
NTC
MK100
1 4 2 5 3 6
IGBT U
MK501
8 4 5 1
IGBT V
MK601
8 4 5 1
IGBT W
MK701
8 4 5 1
BRAKE GATE
MK201
1 610 2 7 5
FANS
MK501
9 8 7 6 4 3 2 1
CUSTOMER RELAYS
MK500
C NONC C NONC
1 2 3 5 6 7
EMC RELAYS
MK502
4 6 1 3
3
FAN+
4 CTL
1
SENS
2
FAN -
BRAKE TEMP
MK106
1 2 3
CURRENT SENSORS
MK101
1 2 3 4 5 6 9
1011121314157 16
1 2
MK300
AUX TEMP
A B
MK901
SPLIT BUS
DC BUS
MK902
1 4
3
FAN+
4
CTL
1
SENS
2
FAN -
1 6 10
PCA8
1 610 5
PCA9
1 2
NTC1
1 610 5
PCA10
1 2
NTC2
1 610 5
PCA11
1 2
NTC3
2 1 2 1
+
M
-
CT2
+ M
-
CT3
A1A2
CONT
TEST CONNECTOR
MK104
30 PIN
3
FAN+
1 SENS
2FAN -
JUMPER
177G1043
LCP1
DISPLAY
SAFE STOP JUMPER
FC-X02
PCA1
91
R
L1
92
S
L2
93
T
L3
94
GND
FU1
FU2
FU3
FUSE OPTION
MANUAL
DISCONNECT
OR
CIRCUIT
BREAKER
TB1
CONTACTOR
C1
SCR1
R
L1
DC INDUCTOR
SCR2
S
SCR3
T
+
-
+
-
CBANK 1
C2 C3
96
U
97
V
98
W
TB2
89
LS+
88
LS-
TB3
82
R+
REGEN+
81
R-
83
REGEN-
TB4
A1 RFI
INRUSH PCA4
GATEDRIVE PCA5
BAL/HF
PCA7
F1 S1
F2 S2
POWER CARD PCA2
CBL10
RED
BLK
BLK
RED
BLK
RED
BLK
RED
WHT
BLK
WHT
BLK
WHT
BLK
10
PIN
MK102
BLK
RED
BLK
RED
BLK
RED
BLK
RED
BLK
RED
BLK
RED
WHT
BLK
RED
30 PIN
MK103
30 PIN
MK101
YEL
BLK
RED
BRN
YEL
BLK
44 PIN
FK102
44 PIN
MK102
WHT
BLK
WHT
BLK
WHT
BLK
WHT
BLK
RED
BRN
HS FAN
F2
RED
BRN
YEL
BLK
BLK
WHT
RED
BLK
WHT
RED
BLK
WHT
RED
SHIELD
RED
WHT
BLK
CURRENT
SCALING
PCA3
WHT
BLK
TOP FAN (IP20)
DOOR FAN
(IP54)
F1
RED
BRN
YEL
BLK
10
PIN
MK1800
BRAKE IGBT
MODULE
IGBT4
RED
BLK
WHT
UP
UN
IGBT1
WHT
BLK
BLK
RED
BLK
RED
VP
VN
IGBT2
WHT
BLK
BLK
RED
BLK
RED
WP
WN
IGBT3
WHT
BLK
BLK
RED
BLK
RED
RED
BLK
RED
BLK
RED
WHT
BLK
RED
WHT
BLK
BLK
WHT
99
GND
HEATER OPTION
CUSTOMER
TERMINAL BLOCK
230VAC 50/60Hz
BLK
WHT
CBL9
CBL8
CBL12
CBL4
CBL3
CBL7
CBL2
CBL1
GND
1A
A1
1A
A2
GND
CUSTOMER
TERMINAL BLOCK
230VAC 50/60Hz
GND
6A
A1
6A
A2
GND
BLK
WHT
GRN/YEL
GRN/YEL
R'
S'
T'
R'
REC+
REC-
S' T'
REC-REC+
TB6
TB5
FU4
FU5
FU6
FU7
SW1
SW2
PCA6
BAL. CKT
CBL5
CBL6
CBL11
CBL13 CBL13 CBL13
R1
MIXING
FAN
F3
RED
YEL
BLK
YEL
BLK
RED
CBL14
BLK
WHT
C4
BAL/HF PCA7
T5 130B7184
T7 130B7185
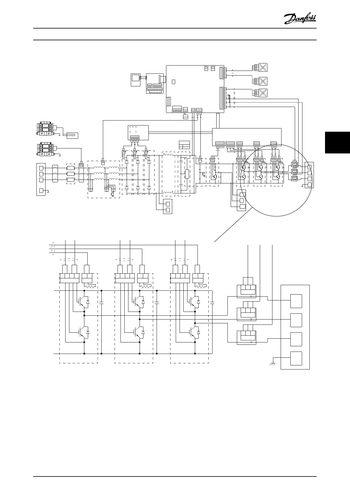
Illustration 5.10 Inverter Section in D-sized Drives
Internal Drive Operation Service Guide
MG94A502 Danfoss A/S © 02/2019 All rights reserved. 53
5 5

Table of Contents

Other manuals for Danfoss VLT HVAC Drive FC 102

Related product manuals