EasyManua.ls Logo

Danfoss VLT HVAC Drive FC 102 - Page 17

Danfoss VLT HVAC Drive FC 102
140 pages
Print Icon
To Next Page IconTo Next Page
To Next Page IconTo Next Page
To Previous Page IconTo Previous Page
To Previous Page IconTo Previous Page
Loading...
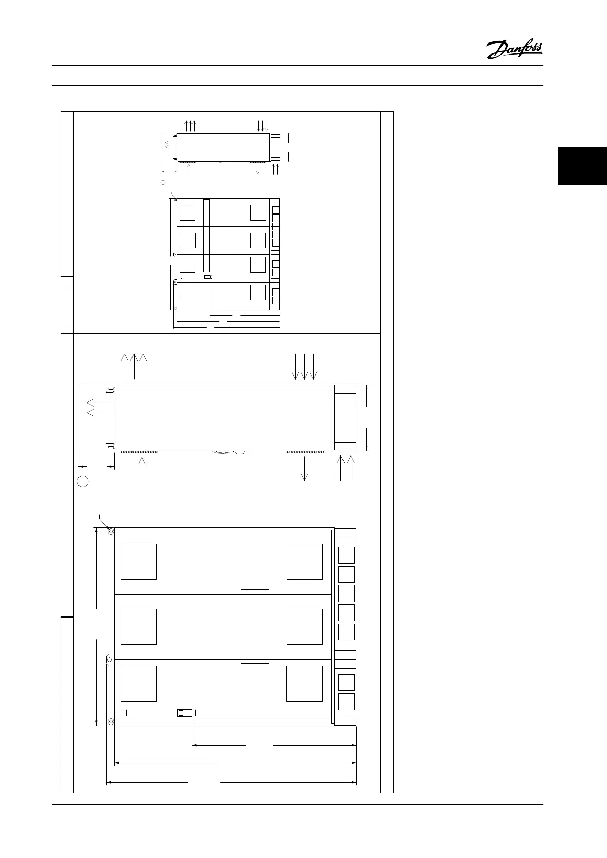
F2 IP21/54 - NEMA 1/12 F4 IP21/54 - NEMA 1/12
225.0
(8.85)
2281
(89.8)
1499
(59.0)
Ø29
(1.1)
1804
(71.0)
2206
(86.9)
606
(23.8)
130BB028.10
1
1) Minimum clearance from ceiling
Table 3.2 Dimensions, F2 and F4
Mechanical Installation Instruction Manual
MG11F522 Danfoss A/S © 08/2014 All rights reserved. 15
3 3

Table of Contents

Other manuals for Danfoss VLT HVAC Drive FC 102

Related product manuals