EasyManua.ls Logo

Delta ASD-A2-3023 Series

Delta ASD-A2-3023 Series
721 pages
To Next Page IconTo Next Page
To Next Page IconTo Next Page
To Previous Page IconTo Previous Page
To Previous Page IconTo Previous Page
Loading...
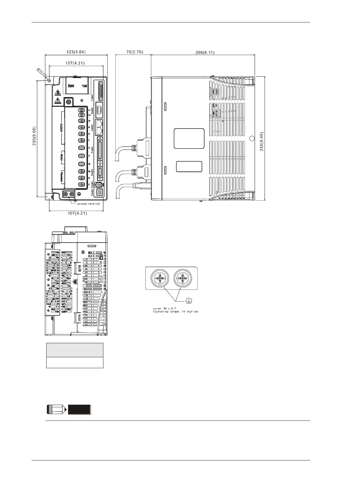
Chapter 11 Specifications ASDA-A2
Revision February, 2017 11-35
ASD-A2-5523 (5.5 kW)
Weight
5.5 (12.1)
NOTE
1) Dimensions are in millimeters (inches); Weights are in kilograms (kg) and (pounds (lbs)).
2) Dimensions and weights of the servo drive may be revised without prior notice.

Table of Contents

Other manuals for Delta ASD-A2-3023 Series

Related product manuals