EasyManua.ls Logo

Delta VFD022B43B - Page 28

Delta VFD022B43B
250 pages
Print Icon
To Next Page IconTo Next Page
To Next Page IconTo Next Page
To Previous Page IconTo Previous Page
To Previous Page IconTo Previous Page
Loading...
Chapter 2 Installation and Wiring_VFD-B Series
2-10
Revision 10/2005, BE13, SW V4.08
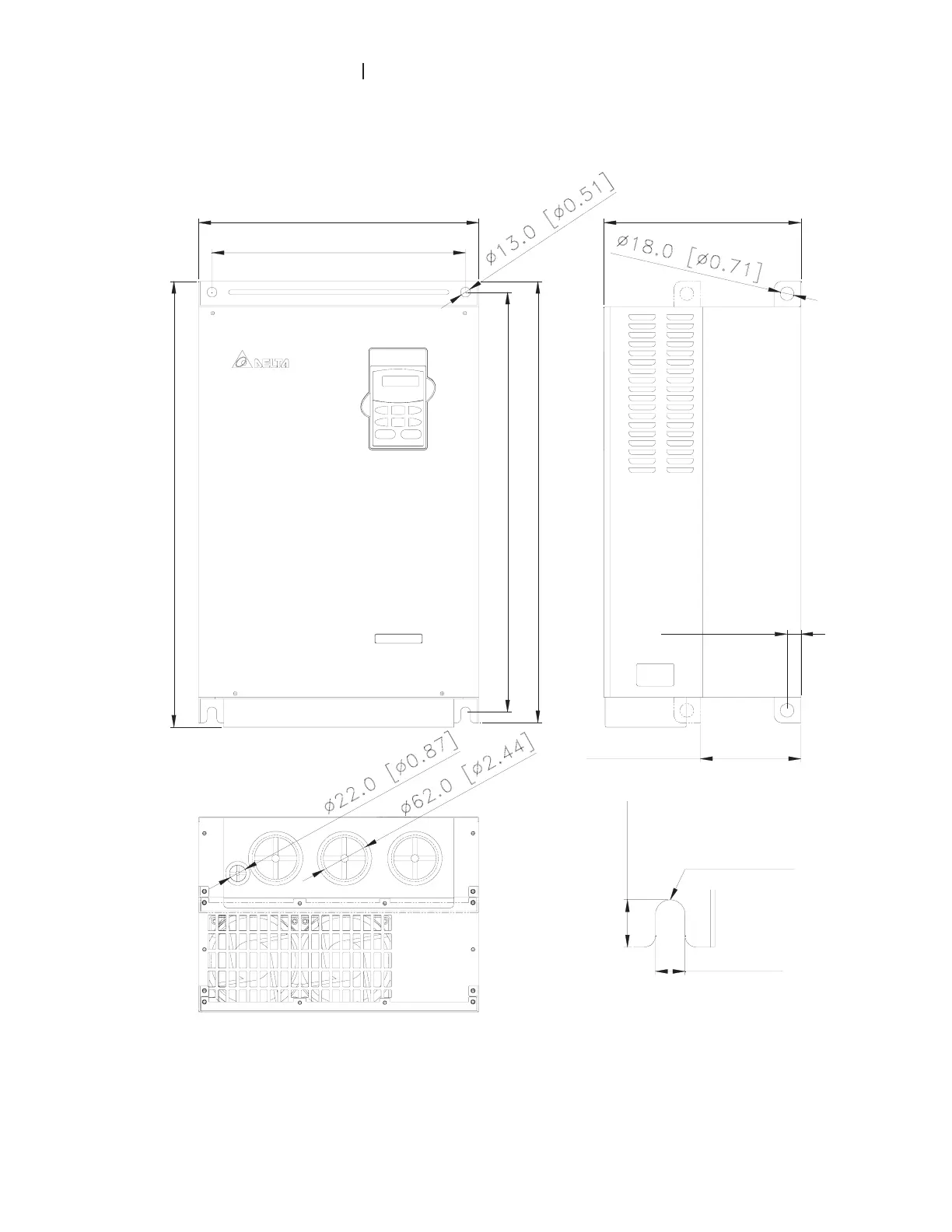
Frame E1: VFD300B23A, VFD370B23A, VFD550B43C/53A, VFD750B43C/53A
132.5 [5.22]
18.0 [0.71]
21.0[0.83]
335.0 [13.19]
370.0 [14.57] 260.0 [10.24]
589.0 [23.19]
560.0 [22.05]
R6.5[0.25]
13.0[0.51]
595.0 [23.43]

Table of Contents

Related product manuals