EasyManua.ls Logo

Delta VFD17AME43ANNAA

Delta VFD17AME43ANNAA
403 pages
To Next Page IconTo Next Page
To Next Page IconTo Next Page
To Previous Page IconTo Previous Page
To Previous Page IconTo Previous Page
Loading...
Chapter 7 Optional AccessoriesME300
7-28
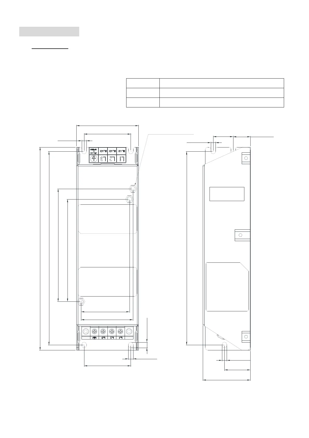
Filter Dimension
Frame A filter
EMF11AM21A
EMF10AM23A
EMF6A0M43A
Screw Torque
M5 * 2 16–18 kg-cm / [13.9–17.3 lb-in.] / [1.56–1.96 Nm]
M4 * 2 14–16 kg-cm / [12.2–13.8 lb-in.] / [1.38–1.56 Nm]
Unit: mm [inch]
55.0 [2.17]
223.0 [8.78]
23.0 [0.91]
30.0 [1.18]
20.0 [0.79]
5.5 [0.22]
5.5 [0.22]
72.0 [2.83]
223.0 [8.78]
234.0 [9.21]
54.0 [2.13]
5.5 [0.22]
54.0 [2.13]
6.5 [0.26]
5.5 [0.22]
130.0 [5.12]
118.0 [4.65]
56.0 [2.20]
60.0 [2.36]
M5 screw
TORQUE:16-18kgf-cm

Table of Contents

Related product manuals