EasyManua.ls Logo

Devatec ElectroVap - Installation Procedure

Devatec ElectroVap
64 pages
Print Icon
To Next Page IconTo Next Page
To Next Page IconTo Next Page
To Previous Page IconTo Previous Page
To Previous Page IconTo Previous Page
Loading...
ElectroVap RTH-V2
10
Pictures and values are not contractual - The devices may be subject to changes without notice
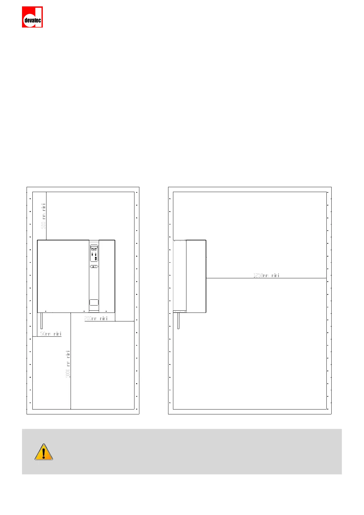
2.4 IMPORTANT INSTRUCTIONS


      up to     



 



Some steps can be dangerous.


Other manuals for Devatec ElectroVap

Related product manuals