EasyManua.ls Logo

Dexter Laundry T-30 - Page 19

Dexter Laundry T-30
187 pages
Print Icon
To Next Page IconTo Next Page
To Next Page IconTo Next Page
To Previous Page IconTo Previous Page
To Previous Page IconTo Previous Page
Loading...
19
8514-311-001 REV PR
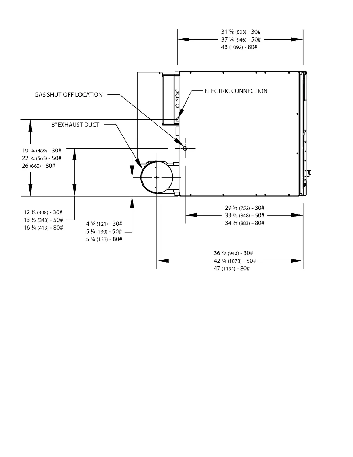
Figure 6-3 Single Pocket Dryer Top View

Table of Contents

Other manuals for Dexter Laundry T-30

Related product manuals