EasyManua.ls Logo

Dexter Laundry T-30 - Make-Up Air

Dexter Laundry T-30
187 pages
Print Icon
To Next Page IconTo Next Page
To Next Page IconTo Next Page
To Previous Page IconTo Previous Page
To Previous Page IconTo Previous Page
Loading...
22
8514-311-001 REV PR
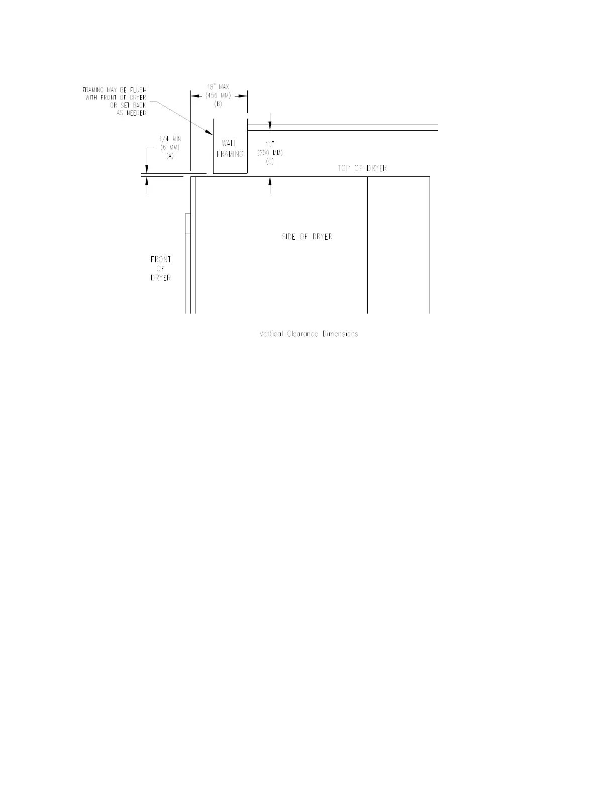
Figure 7-1 Vertical Clearance Dimensions
7.1.4 Make-Up Air
Adequate make-up air must be supplied to replace air exhausted by dryers on all types of installations.
Refer to specifications for the minimum amount of make-up air opening to outside for each dryer. This
is a net requirement of effective area. Screens, grills or louvers, which will restrict the flow of air, must
be considered. Consult the supplier to determine the free area equivalent for the grill being used. The
source of make-up air should be located sufficiently away from the dryers to allow an even airflow
to the air intakes of all dryers. Multiple openings should be provided. Openings should be a
minimum of 1.8 m (6 feet) away from exhaust outlets.
The sources of all make-up air and room ventilation air movement to all dryers must be located
away from any dry cleaners. This is necessary so that solvent vapors will not be drawn into the
dryer inlet ducts. Dry cleaner solvent vapors will decompose in contact with open flame such as
the gas flame present in clothes dryers. The decomposition products are highly corrosive and will
cause damage to the dryer(s) ducts and clothes loads.
The operation of this appliance may affect the operation of other types of gas appliances, which
take their air for safe combustion from the same room. Adequate ventilation must be provided
to avoid back flow of gasses from other appliances in the same room. All other gas appliances
should be tested with the Dexter dryer in operation and all the windows and doors closed. If in
doubt consult the appliance manufacturer(s).

Table of Contents

Other manuals for Dexter Laundry T-30

Related product manuals