EasyManua.ls Logo

Dexter Laundry T-50 - Page 143

Dexter Laundry T-50
187 pages
Print Icon
To Next Page IconTo Next Page
To Next Page IconTo Next Page
To Previous Page IconTo Previous Page
To Previous Page IconTo Previous Page
Loading...
20
8514-311-001 REV PR
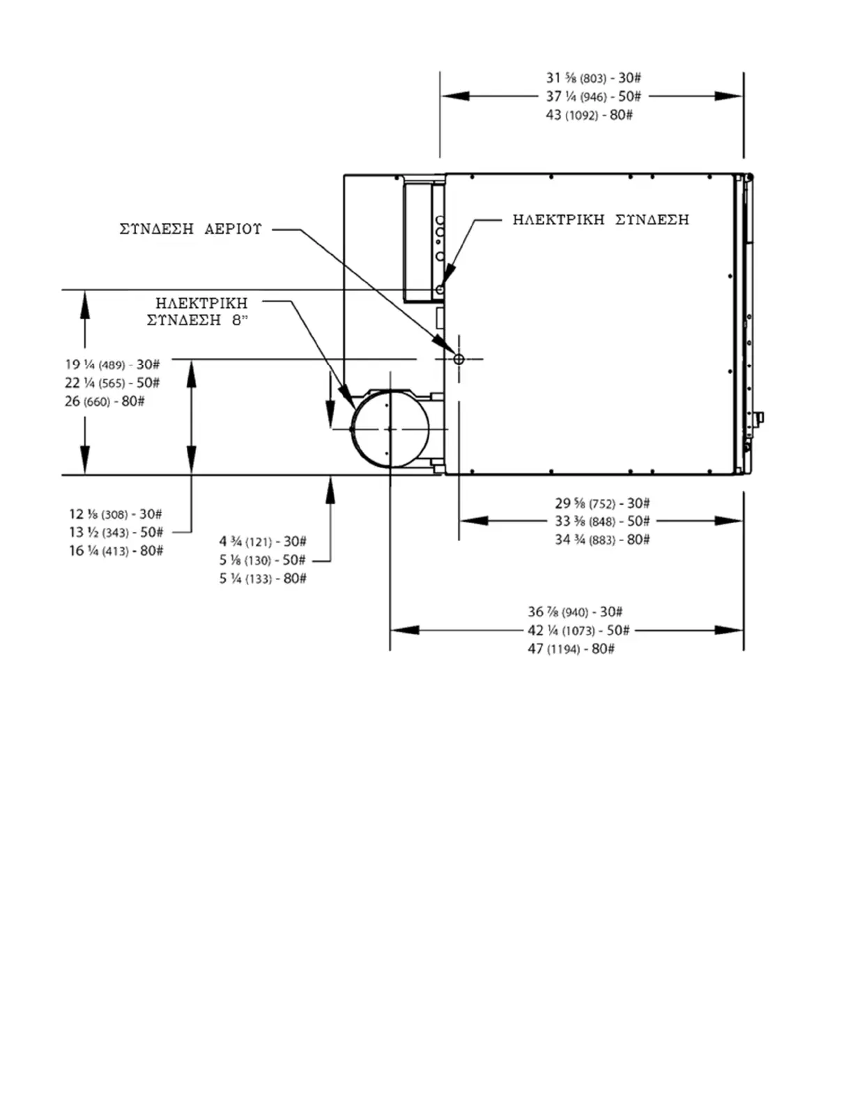
Εικόνα 6-3 Πανοραμική όψη μονού στεγνωτηρίου

Table of Contents