EasyManua.ls Logo

Dexter Laundry T-80 - Page 79

Dexter Laundry T-80
187 pages
Print Icon
To Next Page IconTo Next Page
To Next Page IconTo Next Page
To Previous Page IconTo Previous Page
To Previous Page IconTo Previous Page
Loading...
18
8514-311-001 REV PR
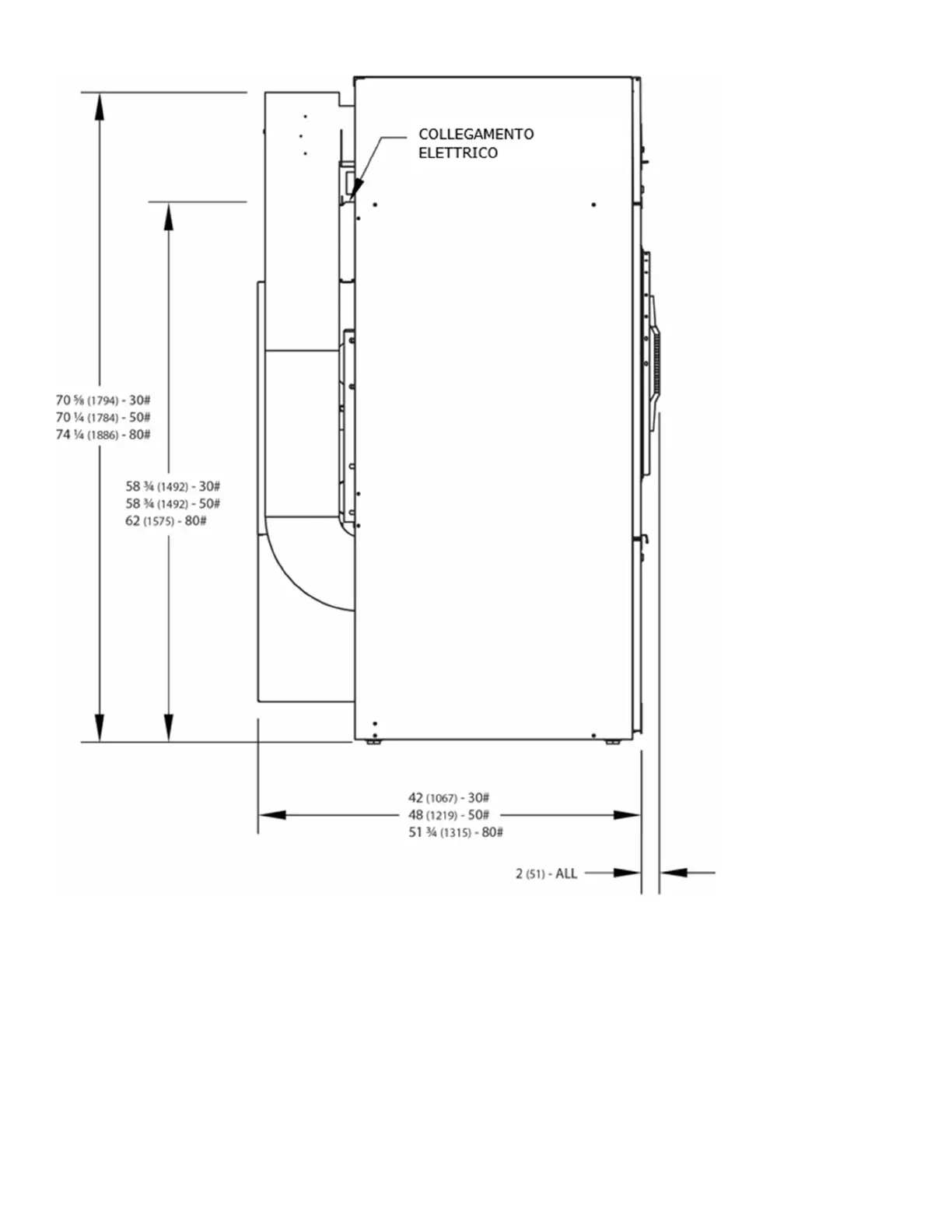
Figura 6-2 Vista laterale dell'asciugatrice a cestello singolo

Table of Contents

Other manuals for Dexter Laundry T-80

Related product manuals