EasyManua.ls Logo

Dexter Laundry T300 - Page 72

Dexter Laundry T300
87 pages
Print Icon
To Next Page IconTo Next Page
To Next Page IconTo Next Page
To Previous Page IconTo Previous Page
To Previous Page IconTo Previous Page
Loading...
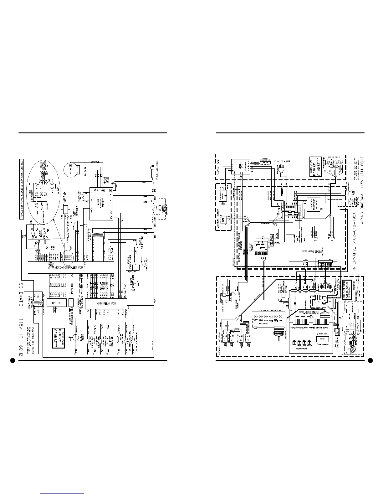
T300 Non-Express: Vended
120 Volt Wiring Schematic
T300 Non-Express: Vended
120 Volt Wiring Diagram
142 143
Part # 8533-080-001 12/15 Part # 8533-080-001 12/15

Table of Contents

Related product manuals