EasyManua.ls Logo

Dexter Laundry T600 - IEC Double Load 20 Lb. Non-Express: 120 Volt

Dexter Laundry T600
98 pages
Print Icon
To Next Page IconTo Next Page
To Next Page IconTo Next Page
To Previous Page IconTo Previous Page
To Previous Page IconTo Previous Page
Loading...
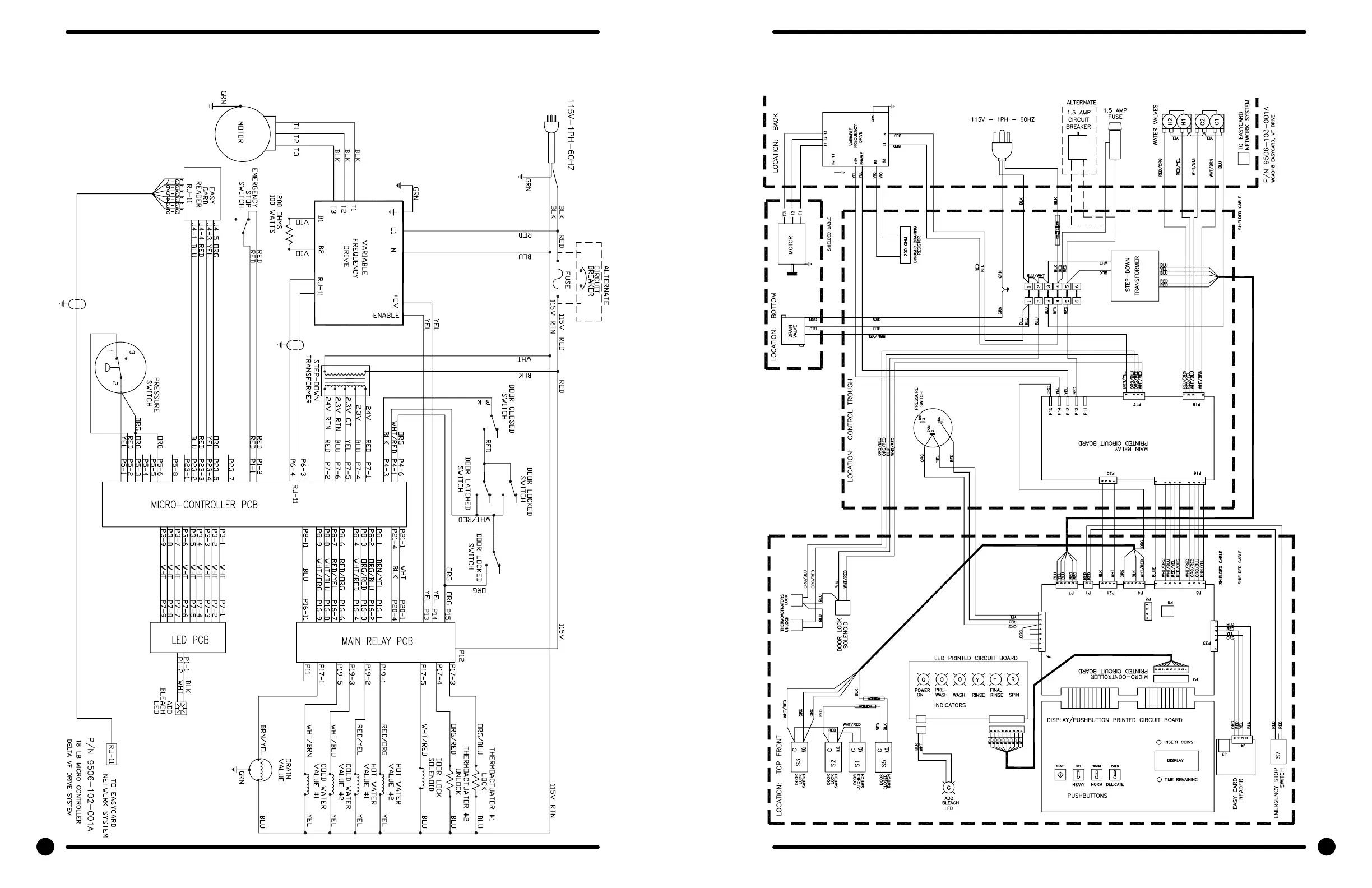
IEC Double Load 20Lb. Non-Express:
120 Volt Wiring Schematic
IEC Double Load 20Lb. Non-Express:
120 Volt Wiring Diagram
168 169
Part # 8533-072-001 3/22 Part # 8533-072-001 3/22
Machine
Mounting
Installation
& Operation
Programming
Trouble-
shooting
Machine
Service
Electrical
Wiring
Parts
Data
Coin
Handling
50Hz
Parts
Maintenance
Service Elec.
Compnents

Table of Contents

Other manuals for Dexter Laundry T600

Related product manuals