EasyManua.ls Logo

Dimplex ASCARI MA12 - Dimensions - Hydraulic connections

Dimplex ASCARI MA12
40 pages
Print Icon
To Next Page IconTo Next Page
To Next Page IconTo Next Page
To Previous Page IconTo Previous Page
To Previous Page IconTo Previous Page
Loading...
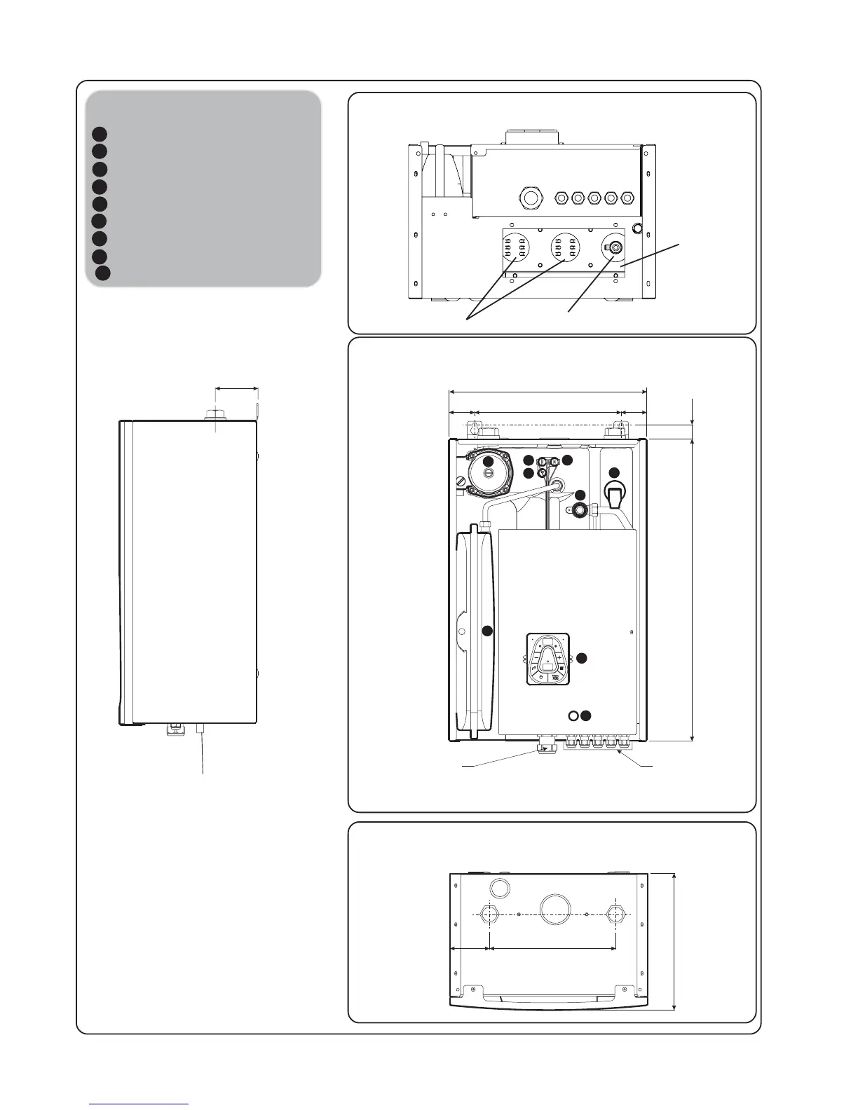
Ascari MA12 -p. 21 -
Decoding
1 - 3 speed pump
2 - 8 liters expansion vessel
3 - 3 bar safety relief bleeder
4 - La ck of water sensor
6 - 60°C safety limitator
7 - 100°C safety limitator
8 - Boiler's sensor
9 - Control pannel
11 - Fuse

2.13 - Dimensions - Hydraulic connections
D = Heating outflow 1" female nut (26/34)
R = Heating backflow 1" female nut (26/34)
(Trapdoor to access elements removed)
405
300
619
Power wire entry
Accessories
connection entries
Side view
Front view
Bottom view
Top view
Safety relief drain
Ø15
87,5
29
Elements
fastener
Heating elements
259
280
81
DR
1
6
7
3
4
2
8
9
11
Drain tap