EasyManua.ls Logo

Dimplex ASCARI MA12 - Regulation circuit drawing

Dimplex ASCARI MA12
40 pages
Print Icon
To Next Page IconTo Next Page
To Next Page IconTo Next Page
To Previous Page IconTo Previous Page
To Previous Page IconTo Previous Page
Loading...
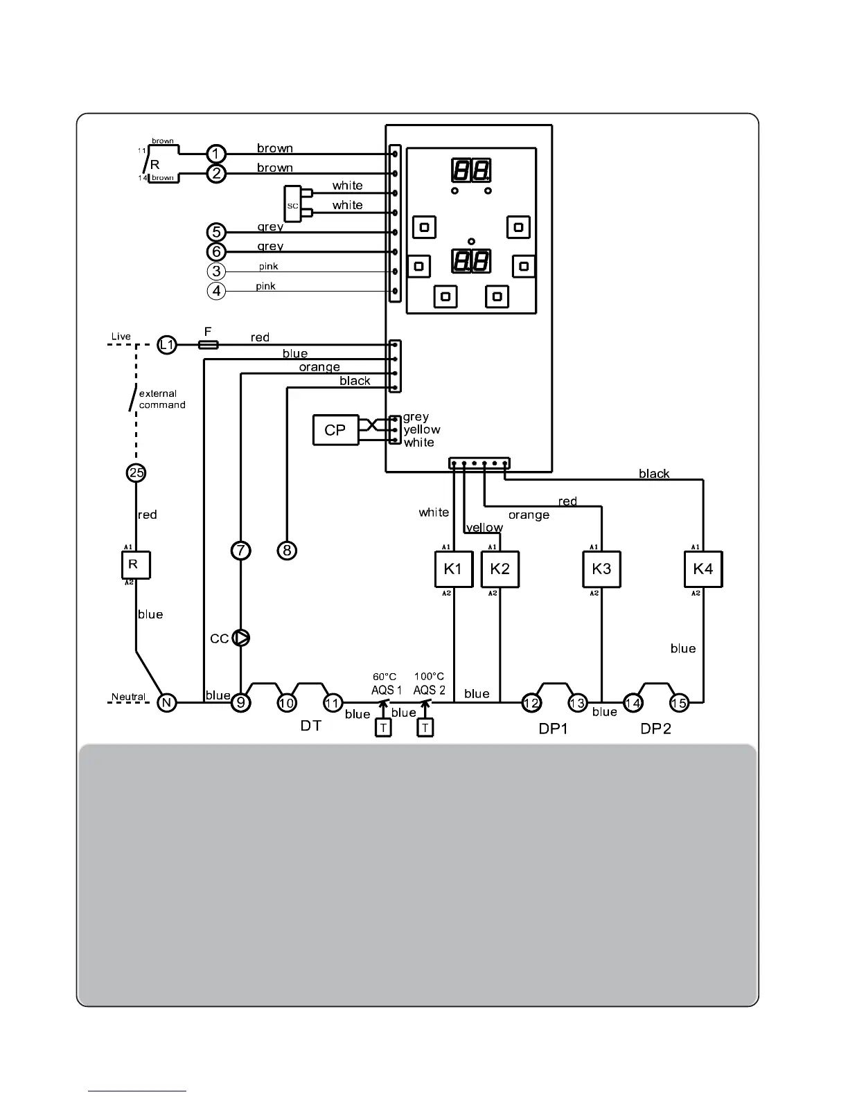
Ascari MA12 -p. 24 -
2.16 - Regulation circuit drawing
2.16.1 - Operating from a switched live
L1 : Live
N : Neutral
F : 4A fuse size 5 x 20
C1 : Electronic card with display
CC : 3 speed pump
SC : Boiler's sensor
AQS1 : 60°C safety limitator with manual reset
AQS2 : 100°C safety limitator with
manual reset
K1 to K4 : 20A power breakers
DT : Total cut-out (remove the bridge)
DP1 & DP2 : Partial cut-out (remove the
bridge)
R : External command relay
Decoding :