EasyManua.ls Logo

DKS 2351 - Section 4 - Troubleshooting; LED Identification

DKS 2351
39 pages
Print Icon
To Next Page IconTo Next Page
To Next Page IconTo Next Page
To Previous Page IconTo Previous Page
To Previous Page IconTo Previous Page
Loading...
Section 4 – Trouble Shooting
Before beginning any trouble shooting, check all wiring and look for any loose connections. Double
check your wiring! The tracker expansion board in some applications may have over 20 wires
connected directly to the board terminal strips. Be sure that you have a good VOM (Volt-Ohm-Meter)
to assist you when checking voltages and continuity.
Check the programming switches to be sure that the tracker board is setup to operate as desired. If
more that one tracker board is connected in the system, be sure the board jumpers are set correctly.
Be sure that the tracker board is powered (16 VAC). The POWER led should be ON when power is
applied to the tracker board. A backup battery should be connected to the tracker board as described
in section 4.2.
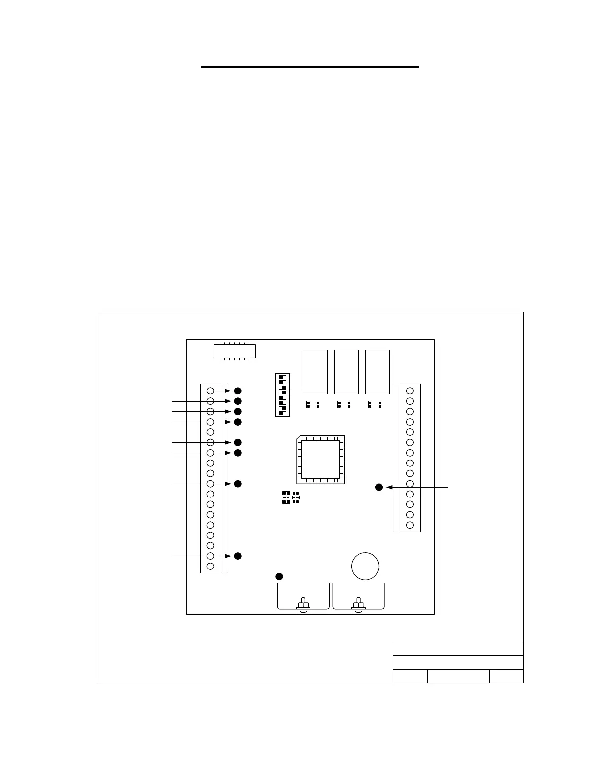
4.1 LED Identification
The illustration below identifies the terminals and LEDs that are useful for trouble shooting purposes.
1 2 3 4 5 6 7 8
NO NC NO NC NO NC
DOORKING
2351-010
1
2
3
4
5
6
7
8
9
10
11
12
13
14
15
16
17
18
P2
POWER
1
2
3
4
5
6
7
8
9
10
11
12
13
14
P1
Gate 1 Data Input
Gate 1 Data Output
Gate 2 Data Input
Gate 2 Data Output
LEDs
Weigand Data 0
Weigand Data 1
Tracker
Communication
Weigand Output
Command Relay
Input
2351-010 Board LED Identification
DOORKING, INC., INGLEWOOD, CA 90301
Title:
Date: Rev.Dwg. No.
2351-010 Board LED Identifiction
10/03
B
M2351-065-13
2351-065-G-12-07 Page 35