EasyManua.ls Logo

Doosan D100 - Assemble the Planetary Spider and Gearing Assembly

Doosan D100
72 pages
Print Icon
To Next Page IconTo Next Page
To Next Page IconTo Next Page
To Previous Page IconTo Previous Page
To Previous Page IconTo Previous Page
Loading...
Power Train Disassembly & Assembly
9. Install the sun gear thrust washer (14). The
washer tangs must engage the holes in the ring
gear (15).
10. Install the planetary sun gear (13) and snap ring
(12) onto the axle shaft (30).
11. Install the axle shaft and sun gear assembly (30,
13, 12).
The axle shaft must engage the differential side
gear.
The sun gear must make contact with the thrust
washer (14).
The thrust washer tangs must be properly engaged
in the ring gear hub holes.
12. Install the O-ring (20) on the wheel hub (23) at
the base of the flange.
Assemble the Planetary Spider
and Gearing Assembly
When you apply some silicone gasket materials,
small amounts of acid vapor are present. To
prevent possible serious injury, the work area
must be well-ventilated. If the silicone gasket
material gets into your eyes, flush them with water
for 15 minutes. Have your eyes checked by a
doctor as soon as possible.
1. Apply liquid gasket material to the axle shaft thrust
button (6) before pressing it into the spider (3).
2. Press the new axle shaft thrust button (6) into the
planetary spider (3).
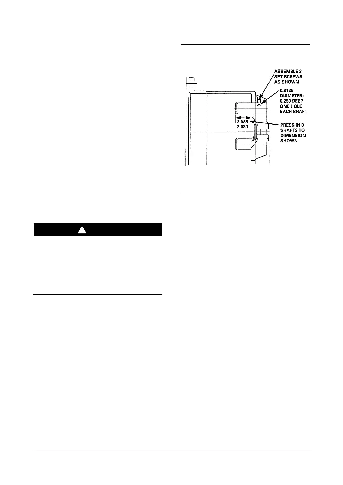
3. Apply a film of non-hardening sealant to the spider
pinion shaft bores.
4. Press the pinion shafts (7) into the bores from the
inner cavity end of the spider. Press the non-
coated end of the pinion shaft into the spider until
the end of the shaft is 2.085-2.080 inches (52.96-
52.83 mm) from the inside face of the spider.
5. Install a set screw (4) into each pinion shaft (7).
Tighten each set screw to 35 lb•ft (47 N•m).
6. Apply gear lubricant to the planetary pinion bores
(9) and to the slot in the pinion shaft (7) journals.
7. Install the outer thrust washer (8) with the tang
engaged into the slot in the spider.
8. Install the planetary pinion (9), inner thrust washer
(10) and snap ring (11).
NOTE : If the original planetary pinions are used,
verify that the gear bores are smooth and free of any
surface damage.
9. Apply liquid gasket material on the wheel hub
O-ring (20) and the adjacent area.
WARNING
51

Other manuals for Doosan D100

Related product manuals