EasyManua.ls Logo

dosatron D3 TRE 3000 - Aanwijzingen Voor de Installatie

dosatron D3 TRE 3000
Print Icon
To Next Page IconTo Next Page
To Next Page IconTo Next Page
To Previous Page IconTo Previous Page
To Previous Page IconTo Previous Page
Loading...
©
DOSATRON INTERNATIONAL / 149
NL
NO !
AANWIJZINGEN VOOR DE INSTALLATIE
TE HOGE DOORSTROMING (indicatie)
Wanneer uw DOSATRON meer dan 46 keer, d.w.z. 23 cyclussen per 15
seconden tikt, ligt de doorstroming dicht bij de maximum grens. Wanneer u
meer waterdoorstroming nodig heeft, moet u een DOSATRON met een grotere
capaciteit installeren.
*D3RE25 = 30 keer, 15 cyclussen
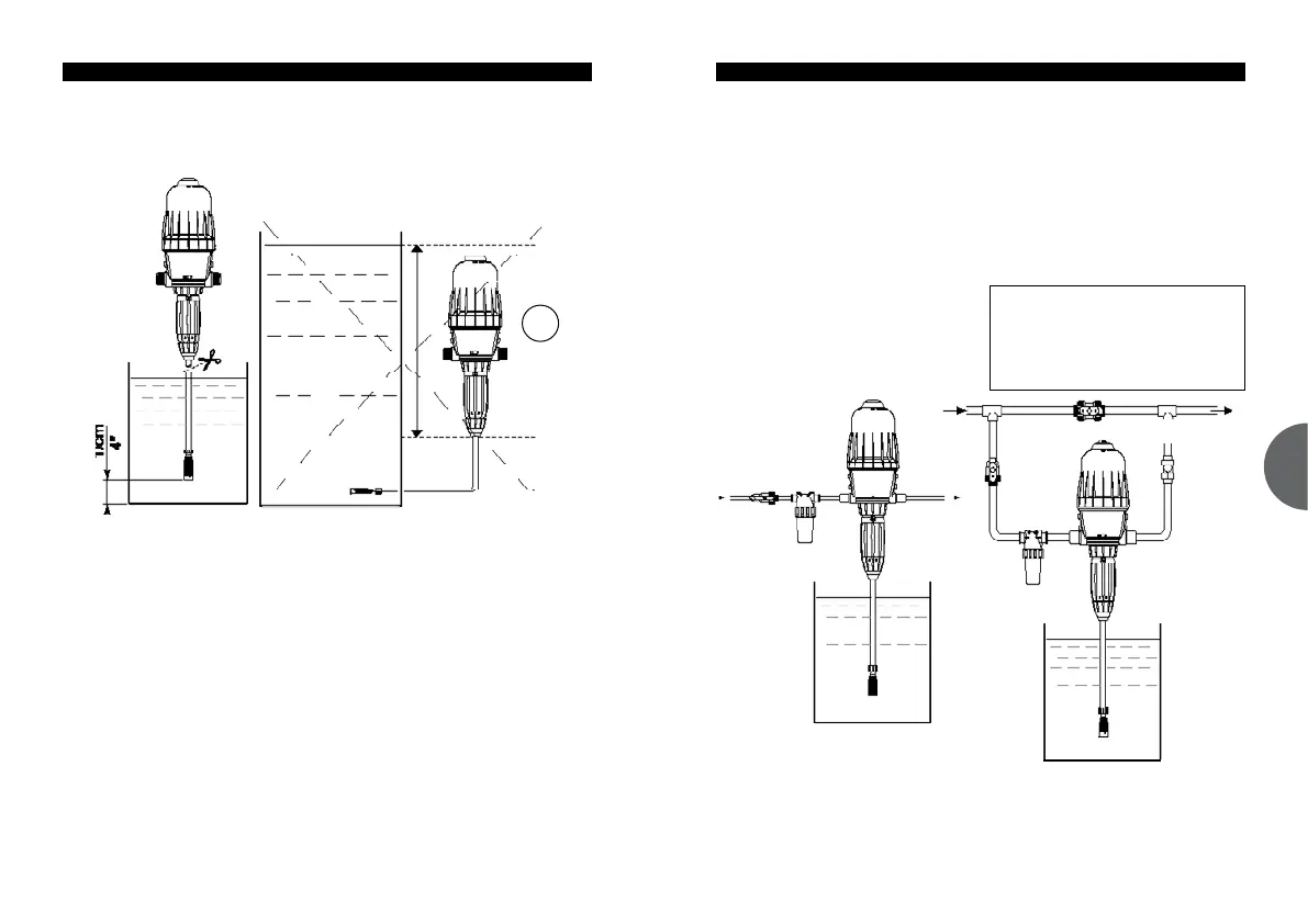
De DOSATRON kan direct (fig. 4)
of via een
bypass (fig. 5) in de
waterleiding geïnstalleerd worden.
Om de levensduur van de
DOSATRON te verlengen wordt
geadviseerd een filter van ( 300
mesh = 60 micron afhankelijk van de
waterkwaliteit) voor de DOSATRON
te installeren. Dit is noodzakelijk
wanneer het water verontreinigingen
bevat of vaste deeltjes, speciaal bij
water uit een eigen bron.
Een filter wordt aanbevolen
en is nodig om voor garantie
in aanmerking te komen.
De installatie van een DOSATRON
in een bypass geeft de mogelijkheid
om over schoon water te beschikken
terwijl de DOSATRON in onderhoud
is of gerepareerd wordt.
Voor elke installatie geldt
dat deze moet voldoen aan
de eisen van het plaatse-
lijke waterleidingbedrijf.
Fig. 4
terugslagklep
Kraan
Kraan
Filter
Filter
Fig. 5
BELANGRIJK – Het filter moet minimaal 10cm boven de bodem
van het vooraadvat hangen om te voorkomen dat onopgeloste
deeltjes in de pomp gezogen worden en deze beschadigen
(Fig. 2).
Het niveau van de injectievloeistof mag om hevelwerking
te voorkomen nooit boven de inlaat van de DOSATRON
uitkomen (
Fig. 3).
MONTAGE VAN DE DOSEERPOMP (vervolg)
Fig. 2
Fig. 3
ZO MOET HET
ZO MOET HET NIET
©
DOSATRON INTERNATIONAL / 149
©
DOSATRON INTERNATIONAL / 148

Table of Contents

Related product manuals