EasyManua.ls Logo

dosatron D3 TRE 3000 - Рекомендации По Установке

dosatron D3 TRE 3000
Print Icon
To Next Page IconTo Next Page
To Next Page IconTo Next Page
To Previous Page IconTo Previous Page
To Previous Page IconTo Previous Page
Loading...
©
DOSATRON INTERNATIONAL / 175
RU
©
DOSATRON INTERNATIONAL / 175
©
DOSATRON INTERNATIONAL / 174
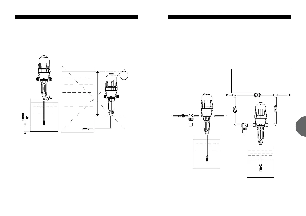
ВНИМАНИЕ ! Поместите сетчатый фильтр на расстоянии
приблизительно 10 см [4”] от дна резервуара
с раствором для предотвращения всасывания нерастворимых
частиц, которые могут повредить корпус дозатора (Рис. 2).
- Не кладите сетчатый фильтр на дно
Уровень в баке с базовым раствором никогда не должен
быть выше уровня поступления воды в дозатор DOSATRON
(во избежание сифонирования) (Рис. 3).
УСТАНОВКА ДОЗАТОРА DOSATRON (продолжение)
Рис. 2
Рис. 3
КАК ВЫ ДОЛЖНЫ ДЕЛАТЬ
КАК ВЫ НЕ ДОЛЖНЫ
ДЕЛАТЬ
РЕКОМЕНДАЦИИ ПО УСТАНОВКЕ
ИЗБЫТОЧНЫЙ РАСХОД (для информации)
Если ваш DOSATRON производит более 46 щелчков, то есть
23 циклов за 15 секунд*, это указывает на предельный расход
дозируемого продукта.
Если вам необходим более высокий расход, следует выбрать
дозатор DOSATRON, рассчитанный на больший расход воды.
*D3RE25IE = 30 ходов, 15 циклов
Установка дозатора может
производиться прямо в
водопроводную линию (Рис. 4),
однако рекомендуется установка в
байпасную линию (Рис. 5).
Если расход продукта превышает
допустимый расход дозатора
DOSATRON, см. главу .
« ИЗБЫТОЧНЫЙ РАСХОД ».
Для увеличения срока
действия дозатора DOSATRON
рекомендуется установить фильтр
(например: 300 меш - 60 микрон
в зависимости от качества вашей
воды) вверх по потоку.
Такая предосторожность
необходима в случае
использования загрязнённой воды,
особенно воды из скважины.
Использование фильтра
рекомендуется и обязательно для
действия гарантии.
Установка в полностью байпасную
линию позволяет подачу чистой
воды без использования дозатора
DOSATRON и облегчает его снятие.
Рис. 4
Обрат-
ный
клапан
Вентиль
Вентиль
Фильтр
Фильтр
Рис. 5
NO !
Подключение установки в
сеть питьевой воды требует
соблюдения действующих в
вашей стране норм и
регламентов

Table of Contents

Related product manuals