EasyManua.ls Logo

Dranetz DranXperT - 3 Phase, 2 Probe Delta Connection

Dranetz DranXperT
56 pages
Print Icon
To Next Page IconTo Next Page
To Next Page IconTo Next Page
To Previous Page IconTo Previous Page
To Previous Page IconTo Previous Page
Loading...
26
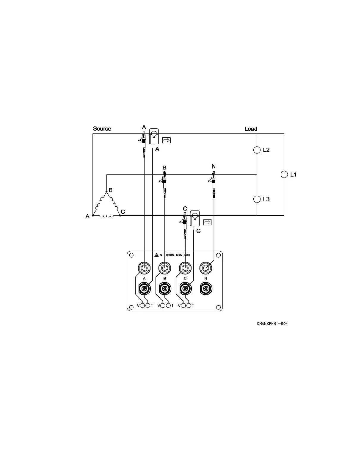
3 Phase, 2 probe Delta
The figure below shows the 3 Phase, 2 probe, 2 wattmeter delta
connection using phase channels A-B-C. The N channel is connected to
phase B as the reference for measurement purposes. Current probes are
connected to measure line currents A and C.
NOTE Be sure to connect the current probes with the arrow
pointing towards the load or an erroneous power reading
will result.