EasyManua.ls Logo

Duke 6/13 - Page 38

Duke 6/13
40 pages
Print Icon
To Next Page IconTo Next Page
To Next Page IconTo Next Page
To Previous Page IconTo Previous Page
To Previous Page IconTo Previous Page
Loading...
38
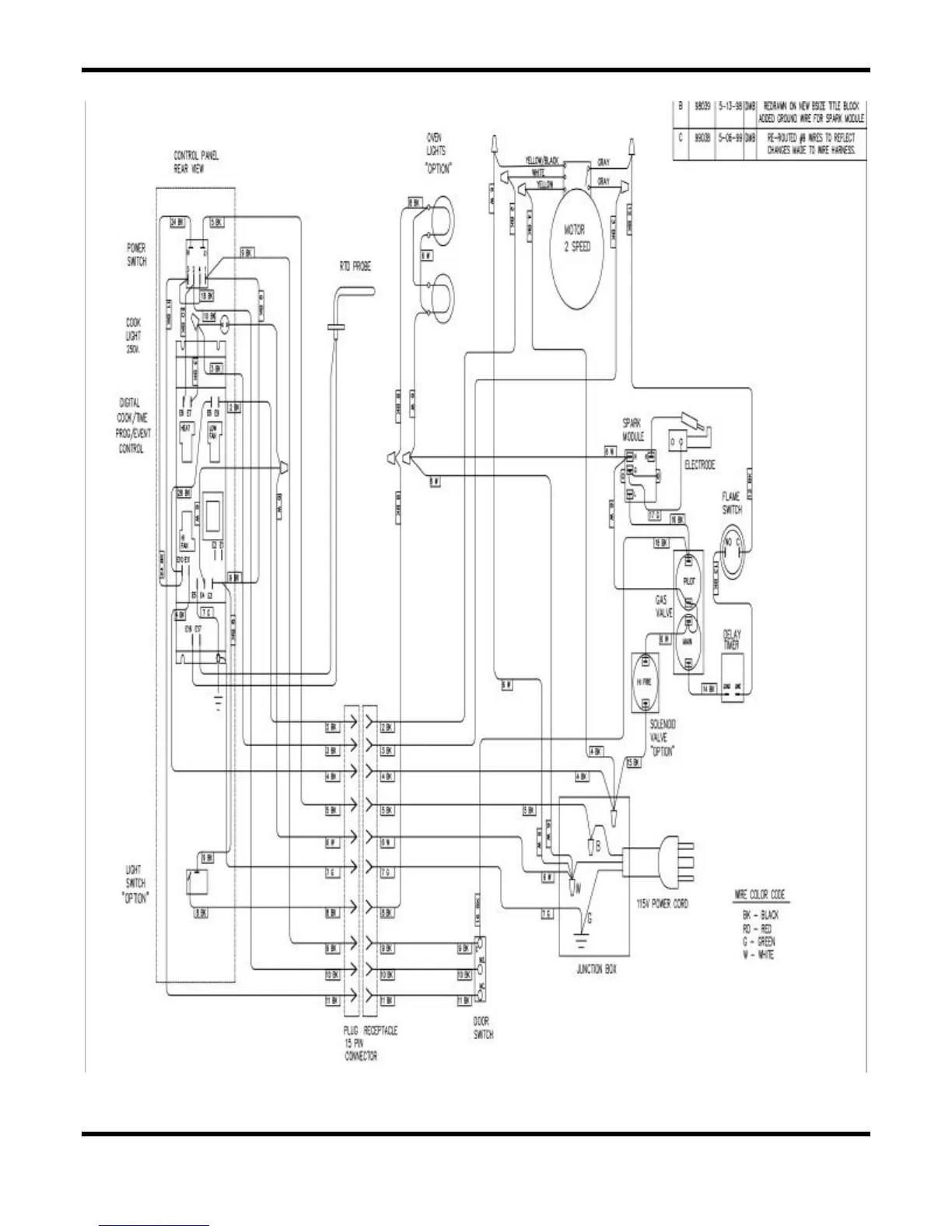
6/13 “Z” & “ZX” CONTROLLER

Related product manuals