EasyManua.ls Logo

Dunkirk DCC-205 - Coaxial Venting Instructions

Dunkirk DCC-205
139 pages
Print Icon
To Next Page IconTo Next Page
To Next Page IconTo Next Page
To Previous Page IconTo Previous Page
To Previous Page IconTo Previous Page
Loading...
21
5 - COMBUSTION AIR AND VENT PIPING
5.6 Coaxial Venting Instructions

Coaxial Elbows - Equivalent length
4"/2" [100 mm/60 mm]
45°
1.64 ft. [0.5 m]
90°
3.28 ft. [1.0 m]
5” / 3” [128 mm/80 mm]
45°
1.64 ft. [0.5 m]
90°
3.28 ft. [1.0 m]
Coaxial Termination - Equivalent length 3 ft (0.9m)
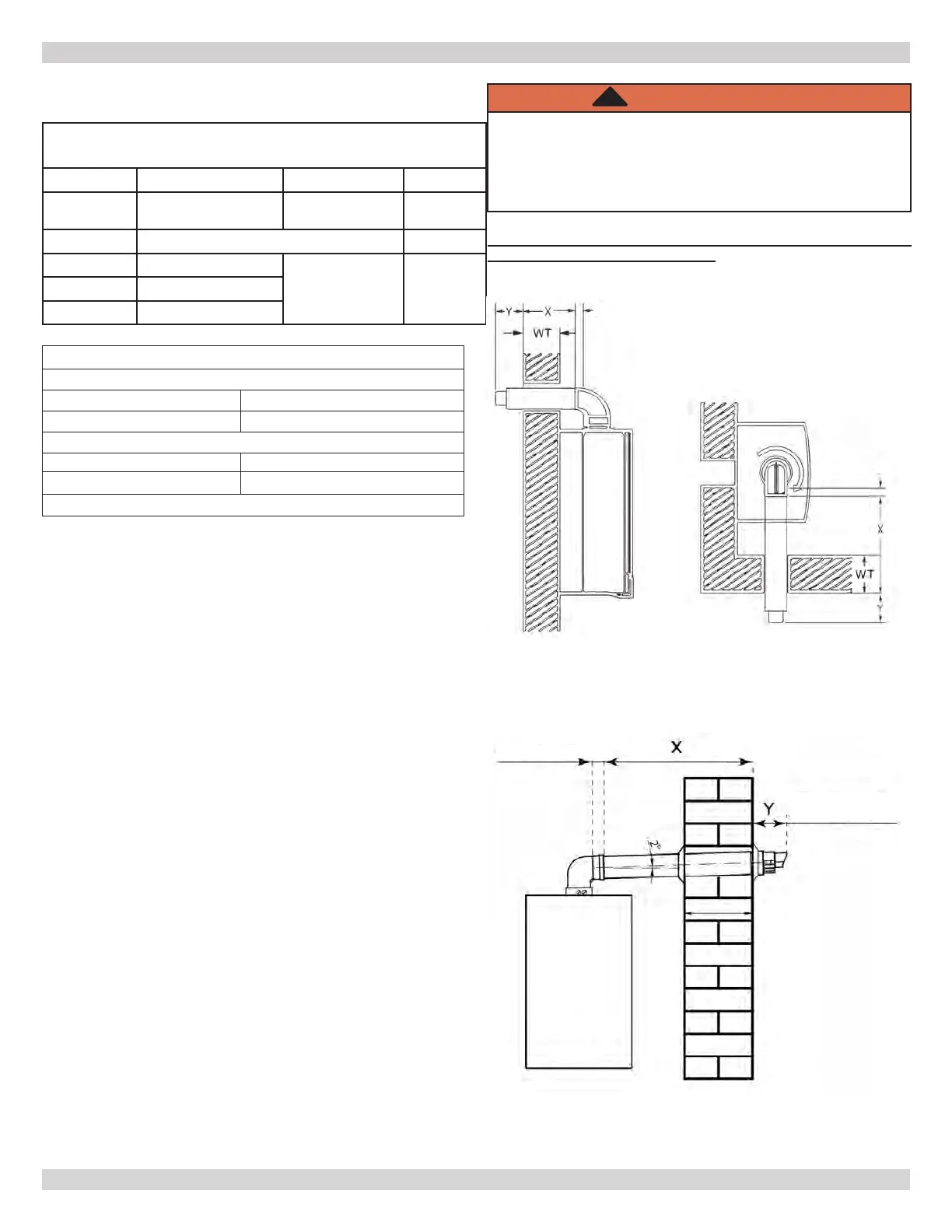
NOTE: Coaxial venting can run horizontal or vertical.

elbow to desired orientation (rear, right or left).
Measure distance from outside wall face to elbow, this
dimension will be known as 'X", add distance "Y" + 2" (60
mm) to "X" this is the total dimension of the vents or use
venting manufacturers instructions. See Figure 5-3.
Mark dimension from above on outer aluminum intake
vent. Measure length of waste material, and transfer



intake air vent and pass them through hole in wall.
Check all measurements before cutting. Clearance to
combustible materials is zero when using coaxial vent
system.
After installing venting use calibrated analyzer to verify
there is no recirculation of combustion.
Ensure termination is positioned with slots at the bottom.
WARNING
Asphyxiation hazard. Before securing the screws
ensure the pipe has been pushed in a minimum of
1-3/4" (45 mm) into the gasketed end of the other
pipe. Failure to follow these instructions could result in
death or serious injury.
!
FIGURE 5-3 - Coaxial Venting Horizontal or Vertical
CAN BE USED ON ALL SIZES
Coaxial Pipe Vent Lengths
(Includes First Elbow And Termination)
Boiler Size 100/115/125/150 165/205
ALL
Vent Size
4"/2"
[100mm/60mm]
5"/3"
[128mm/80mm]
ALL
Maximum Minimum
Natalini
32.8 ft [10m]
32.8 ft [10m]
6 ft.
[1.8m]
DuraVent
27.88 ft [8.5m]
Centrotherm
24.60 ft [7.5m]
WT = Wall Thickness
Note: 2" is insertion depth of straight pipe to elbow.
2"
2"
min. 7.09 in (180 mm)min. 7.09 in (180 mm)
max. 13.78 in (350 mm)max. 13.78 in (350 mm)
1.97 in (50 mm)1.97 in (50 mm)
240013360
REV A [07/01/2021]

Table of Contents

Other manuals for Dunkirk DCC-205

Related product manuals