EasyManua.ls Logo

Dunkirk DXL-50 - Page 11

Dunkirk DXL-50
28 pages
Print Icon
To Next Page IconTo Next Page
To Next Page IconTo Next Page
To Previous Page IconTo Previous Page
To Previous Page IconTo Previous Page
Loading...
6 ' SUPPLY AND RETURN PIPING ...........................
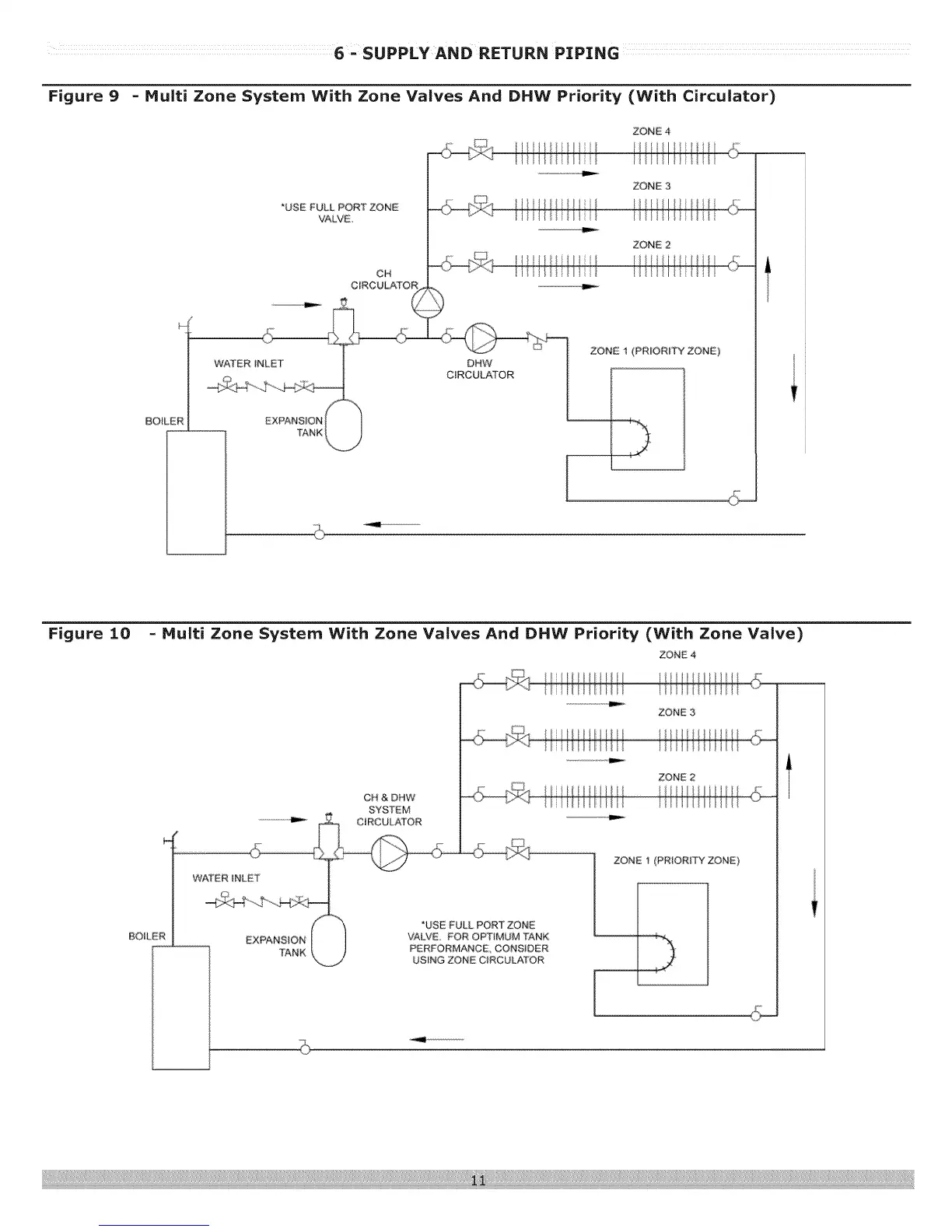
Figure 9 - Hulti Zone System With Zone Valves And DHW Priority (With Circulator)
BOILER
*USE FULL PORT ZONE
VALVE
CH
WATER _NLET
)
ZONE 4
_ LL_]_i _!i.__.:_w_j._
-_ ';/"_ lill IIIIIIii I lllil!Ill II II
ZONE 3
ZONE 2
DHW
CIRCULATOR
ZONE 1 (PRIORITY ZONE)
Figure 10 - Multi Zone System With Zone Valves And DHW Priority (With Zone Valve)
ZONE 4
BOILER
EXPANSION
TANK
CH & DHW
SYSTEM
ZONE 3
ZONE 2
*USE FULL PORT ZONE
VAWE FOR OPTIMUM TANK
PERFORMANCE CONSIDER
USING ZONE CfRCULA]OR
ZONE 1 (PR{ORITY ZONE)

Related product manuals