EasyManua.ls Logo

Dunkirk DXL-50 - Page 2

Dunkirk DXL-50
28 pages
Print Icon
To Next Page IconTo Next Page
To Next Page IconTo Next Page
To Previous Page IconTo Previous Page
To Previous Page IconTo Previous Page
Loading...
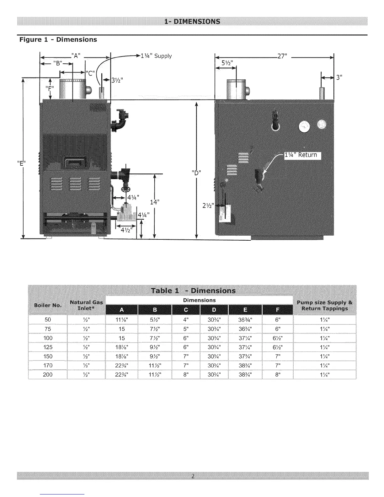
Supply
21/2"
n
50 4" 303/4" 36¾" 6" 1¼"
75 =" 3'_/'' "_/ .... _ "
,., u/4 _u/4 6 1¼
100 6"
...............i2 _..........................'/;; ....................i 8_/;;.... 9'";; 6" 30_/..... /., _,/., 4,/.
J /2 /8 /2 /4 01/4 i U/2 / /4
1 7 1 3 3 1
150 ;; ½ 18% 7 30¼ 37¾ 7 1¼
170 _/,, "3"_3/" 44 I/" -7" C, f'_3/" 903/" -7" 41/"
/2 /--_--/4 // /2 t OU/4 OO/4 / / /4 ;
1 3 1 ; 3 3 ; 1
200 ½ ,, 22¾ 11½ 8 30¾ ....................................................................................................................8..............................................' 1¼

Related product manuals