EasyManua.ls Logo

DUROMAX XP4400E - Page 26

DUROMAX XP4400E
36 pages
Print Icon
To Next Page IconTo Next Page
To Next Page IconTo Next Page
To Previous Page IconTo Previous Page
To Previous Page IconTo Previous Page
Loading...
\0
N
-
ill
o
o
~
~
0-
X
---
:l!:
~
C)
~
o
C)
z
-
0::::
-
~
I
I
I
I
-----l
I
I
I
J
Spark
19ni t
ion
coi
1
plug
-::-
~
'-"',~-I-
-~-
-
-,
- I
j I
~
of
BI~?-
Bl
~
l'~l
~
0;[
"l"n
,,,,it
-
,-
!
""~r1
I
Bl
--------t--
,I
I I
v
"'"
IG
E
BA
ST
FS
G
OFF
0-
-0
0-
Lo
ON
'tart
0-
-0
Generator
block
I Engine
block
--
--
--'--
--'---'--
--
Ignition
switch
connecting
Main
cod
R
'-j:
I
~
,
(
IILB-t=--LB
~
,--Gr
Y/G
=~@;----=====I==
Y/G
B1
.
til\
I
/.
I
'-<
~'>-.,
y
10
_---l.'_
'co:
lli~
@
LB,----
I,
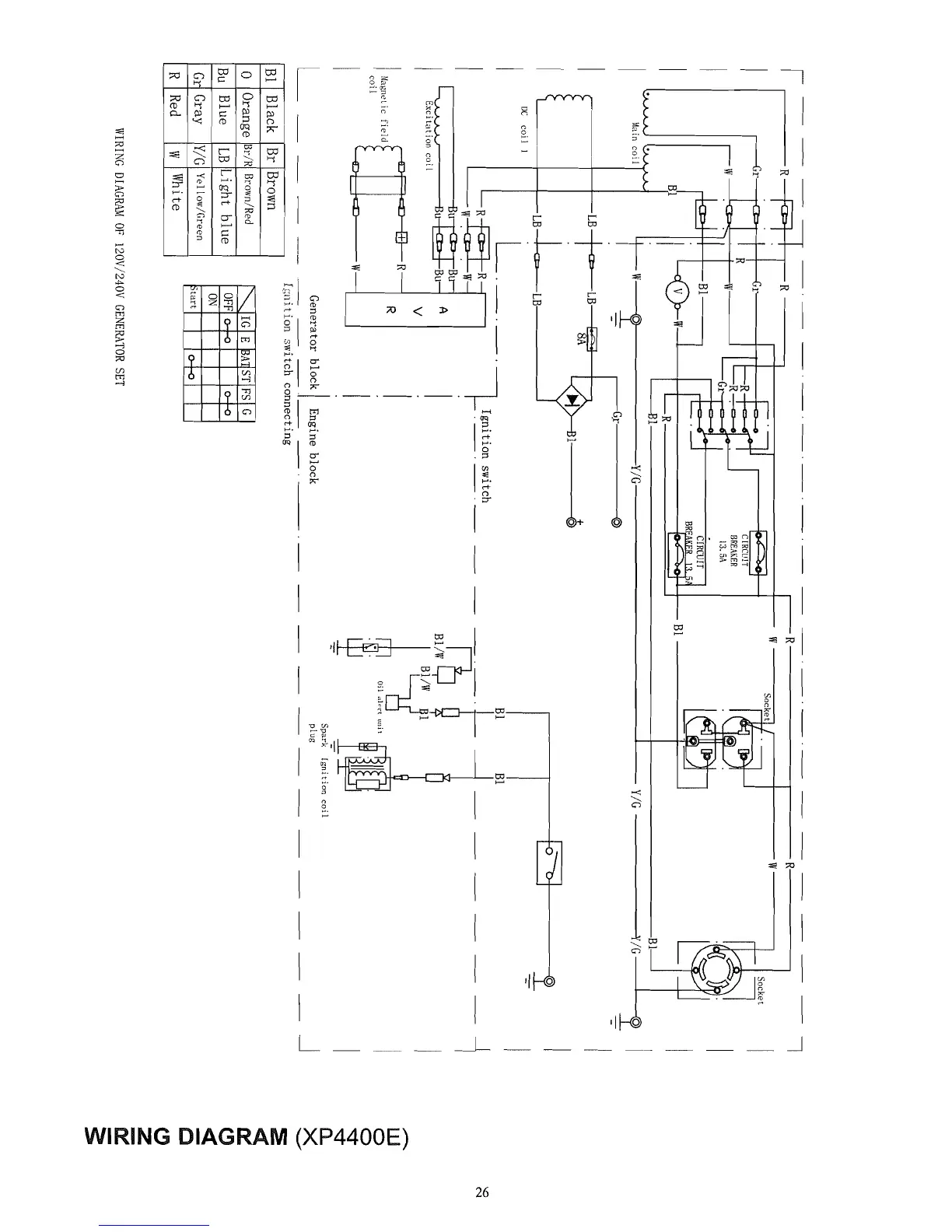
WIRING
DIAGRMI
OF
120V/240V
GENERATOR
SET
L _
I
M,,~nelic
field
CR
I R
cOlI
I W
II
R~II
,
I
I
I
I
I
I
I
DC
coil
1
I
'L
L._._.,.
I
LL=~~rl
r-,goitiOO
"itch_
I
'---~-t"tiO
-.,
----R~~:=gBU
A
Bl
Black
Br
Brown
0
Orange
Ilr/R
Brown/Red
Bu
Blue
LB
Light blue
Gr
Gray
Y/G
Yellow/Green
R
Red
W
White

Related product manuals