EasyManua.ls Logo

EAE EE62C-35T-E - General Installation Steps

EAE EE62C-35T-E
44 pages
Print Icon
To Next Page IconTo Next Page
To Next Page IconTo Next Page
To Previous Page IconTo Previous Page
To Previous Page IconTo Previous Page
Loading...
Installation, Operation and Parts Manual
EE62C-35T-E / EE62C-42T-E
14
4.2.3 Do not place any vehicle on the lift in the case of trial running.
4.3 General Installation Steps
ONLY TRAINED AND QUALIFIED INSTALLERS CAN PERFORM LIFT INSTALLATION DUTIES.
Step 1: Remove the packaging, take out the carton for accessories.
Step 2: Firstly, put something supporting between the two posts or suspend one of the posts by a crane and then remove the bolts
from the packing frame.
AttentionPlease pay special attention not to let the post fall down for it may cause casualty or bring damages to the accessories
fixed in the post.
Step 3: When the first post has been taken away, place something supporter under the second post and then remove the bolts
from the packing frame.
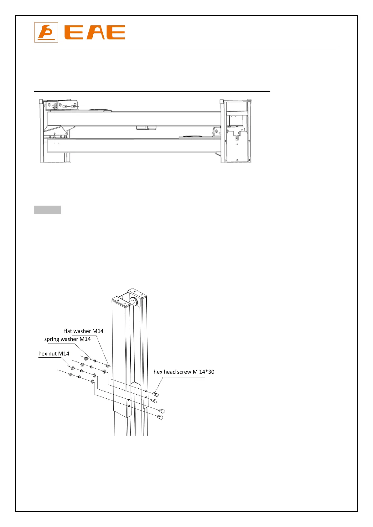
Step 4: Connect extending posts and cross beams
1. Firstly have the extending post firmly secured on to the body posts. This is only necessary when your lift is ordered with extending
posts