EasyManua.ls Logo

Ecoflam BLU 350 - Page 43

Ecoflam BLU 350
Print Icon
To Next Page IconTo Next Page
To Next Page IconTo Next Page
To Previous Page IconTo Previous Page
To Previous Page IconTo Previous Page
Loading...
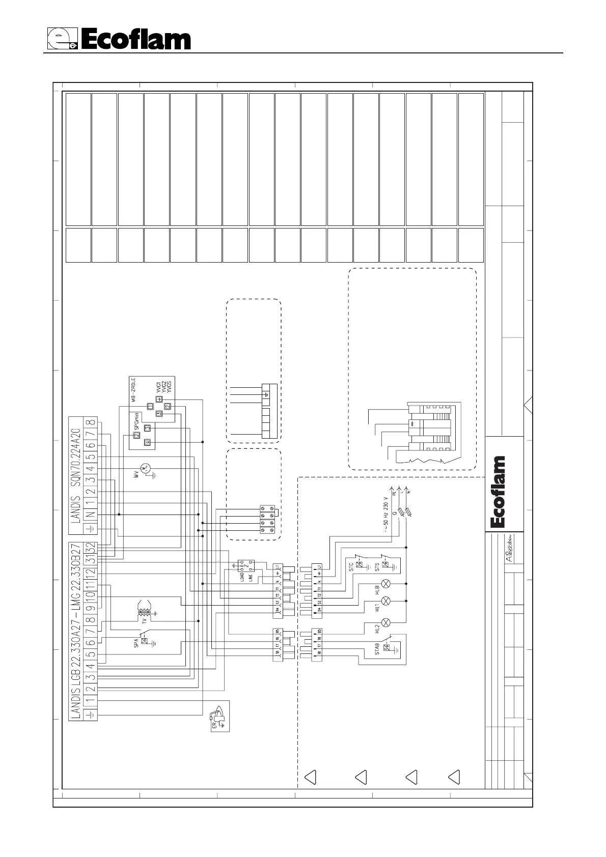
LB 429 Blu 170 ÷ 350 P /P AB ABCD
pag.43
ATTENZIONE !
PER ACCOPPIAMENTO CON CALDAIE
NON ECOFLAM, L'INSTALLATORE
DEVE EFFETTUARE I COLLEGAMENTI
RIPORTATI A LATO.
WARNING !
FOR INSTALLATION ON BOILES NOT
MANIFACTURES BY ECOFLAM,
FOLLOWTHE DIAGRAM SHOWN.
ATTENTION !
POUR INSTALLATION SUR CHAUDERES
NON FABRIQUER PAR ECOFLAM,
SUNRE LE SCHEMA A COTE.
CUIDADO !
PARA INSTALACION EN CALDERAS NON
ECOFLAM, VER AL ESQUEMA AL LADO.
!
!
!
!
00 01 02 03 04
05
06
07
08 09
E
D
C
B
A
00 01 02 03 04
05
06
07
08 09
E
D
C
B
A
S.p.A
Uff. Tecnico - Settore Elettrico
IND.MOD.
SOST. IL
SOST. DA
DATA-FIRMA
DATA
FIRMA
DESCRIZIONE MODIFICA
DISEGNATO
CONTROLLATO
DATA
FIRMA
DENOMINAZIONE
APPARECCHIATURA
CONTROLLO DI TENUTA
SIST. RIVELAZ.
MOTORIDUTTORE
CODICE
IND. MODIFICA
PROPRIETA' RISERVATA DELLA DITTA ECOFLAMS.P.A. - A TERMINE DI LEGGE E' VIETATO RIPRODURRE O COMUNICARE A TERZI IL CONTENUTO DEL PRESENTE.
LANDIS LGB 22.330A27
LMG 22.330B27
ER
BEM05.120
02-03-2001
INTERRUTTORE GENERALE CON FUSIBILE
MAIN SWITCH WITH FUSE
INTERRUPTEUR GENERAL AVEC FUSIBLE
INTERRUPTOR GENERAL CON FUSIBILE
Q
TV
TRASFORMATORE
IGNITION TRANSFORMER
TRANSFORMATEUR D'ALLUMAGE
TRASFORMADOR
MV
MOTORE VENTILATORE
MOTOR FAN
MOTEUR VENTILATEUR
MOTOR VENTILADOR
ER
ELETTRODO DI RIVELAZIONE
IONIZATION PROBE
ELECTRODE D'IONISATION
ELECTRODO DE IONIZACION
Z
FILTRO ANTIDISTURBO
ANTJAMMING FILTER
FILTRE ANTIPARASITES
FILTRO ANTITRASTORNO
HL1
LAMPADA DI PRIMA FIAMMA
1st FLAME LAMP
LAMPE DE 1° ALLURE
ESPIA DE 1° LLAMA
HL2
LAMPADA DI SECONDA FIAMMA
1nd FLAME LAMP
LAMPE DE 2° ALLURE
ESPIA DE 2° LLAMA
HLB
LAMPADA DI BLOCCO
LOCK-OUT LAMP
LAMPE DE SECURITE
ESPIA DE BLOQUEO
SPA
PRESSOSTATO ARIA
AIR PRESSURE SWITCH
PRESSOSTAT AIR
PRESOSTATO AIRE
STC
TERMOSTATO CALDAIA
BOILER THERMOSTAT
THERMOSTAT CAUDIERE
TERMOSTATO CALDERA
STS
TERMOSTATO DI SICUREZZA
SAFETY THERMOSTAT
THERMOSTAT DE SECURITE
TERMOSTATO DE SECURIDAD
YVG1
ELETTROVALVOLA GAS DI PRIMA FIAMMA
FIRST STAGE GAS SOLENOID VALVE
ELECTROVANNE GAZ PETITE ALLURE
ELECTROVALVULA GAS DE 1° LLAMA
YVGS
ELETTROVALVOLA GAS DI SICUREZZA
SAFETY GAS VALVE
ELECTROVANNE GAZ DE SECURITE
ELECTROVALVULA GAS DE SECURIDAD
STAB
TERMOSTATO DI ALTA-BASSA
HIG-LOW FLAME THERMOSTAT
THERMOSTAT GRANDE-PETITE ALLURE
TERMOSTATO DE ALTA-BAJA LLAMA
SPG
min
PRESSOSTATO GAS DI MINIMA
GAS PRESSURE SWITCH MIN
PRESSOSTAT GAZ PRESSION MIN
PRESOSTATO GAS DE MINIMA POT.
YVG2
ELETTROVALVOLA GAS DI SECONDA FIAMMA
SECOND STAGE GAS SOLENOID VALVE
ELECTROVANNE GAZ GRANDE ALLURE
ELECTROVALVULA GAS DE 2° LLAMA
LANDIS SQN 70.224A20
I :
CAMMA DI REGOLAZIONE 2° FIAMMA
II :
CAMMA CHIUSURA TOTALE
III :
CAMMA DI REGOLAZIONE 1° FIAMMA
IV :
CAMMA APERTURA ELETTR. 2° FIAMMA
I :
HIGH FLAME ADJUSTING CAM
II :
FULL CLOSING CAM
III :
LOW FLAME ADJUSTING CAM
IV :
HIGH FLAME SOL. VALVE OPENING CAM
I :
CAME REGULATION 2e ALLURE
II :
CAME FERMENTURE TOTALE
III :
CAME REGULATION 1e ALLURE
IV :
CAME OUVERTURE ELETTROV. 2e ALLURE
I :
LEVA DE REGULACION ALTA LLAMA
II :
LEVA CIERRE TOTAL
III :
LEVA DE REGULACION BAJA LLAMA
IV :
LEVA ABERTURA ELECTROV. ALTA LLAMA
I
II
III
IV
PREDISPOSTO
BLU 170-250-350 PAB / BLU 170-250-350 PAB Ecomax-Duomax
BLUE
YELLOW-GREEN
BLACK
BROWN
PREDISPOSIZIONE
CONTROLLO DI TENUTA
PREDISPOSED
LEKAGE CONTROL
PREVU POUR LE
CONTROLE D'ETANCHEITI
PREDISPOSICION
CONTROL DE ESTANQUIDAD
DUNGS VPS 504
T6
N
T7 T8 B5
L1
BLUE
YELLOW-GREEN
BLACK
BROWN
PER LA VERSIONE CON VPS 504
ATTENERSI AI COLLEGAMENTI DEL RIQUADRO
POR VERSION WITH VPS 504 FOLLOW
CONNECTIONS SHOWED ABOVE
POUR LA VERSION AVEC VPS 504
SUIVRE LES CONNEXIONS EN HAUT
PARA LA VERSION CON VPS 504
RESPECTAR LAS CONEXIONES ARRIBA

Related product manuals