EasyManua.ls Logo

Ecoflam BLU 350 - Page 45

Ecoflam BLU 350
Print Icon
To Next Page IconTo Next Page
To Next Page IconTo Next Page
To Previous Page IconTo Previous Page
To Previous Page IconTo Previous Page
Loading...
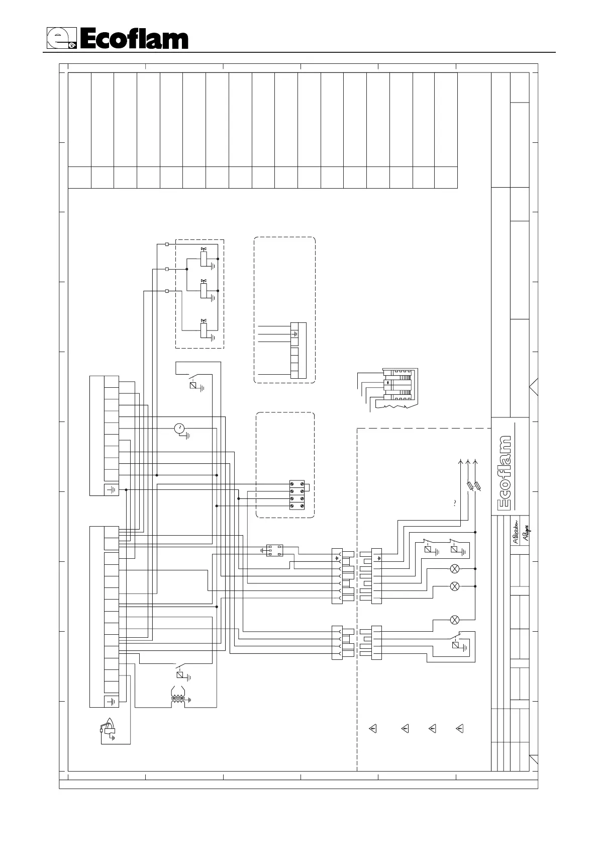
LB 429 Blu 170 ÷ 350 P /P AB ABCD
pag.45
3
LANDIS SQN70.224A20
N12 54687
M
1
LINE
LOAD
ATTENTION
AL LADO.
NON ECOFLAM VER AL ESQUEMA
PARA INSTALACION EN CALDERAS
ECOFLAM, SUNRE LE SCHEMA A COTE.
CHAUDIERES NON FABRIQUER PAR
POUR INSTALLATION SUR
CUIDADO !
PER ACCOPIAMENTO CON CALDAIE
FOLLOW THE DIAGRAM SHOWN.
NOT MANUFACTURES BY ECOFLAM
FOR INSTALLATION ON BOILES
NON ECOFLAM, L'INSTALLATORE
DEVE EFFETTUARE I COLLEGAMENTI
RIPORTATI A LATO.
WARNING !
ATTENZIONE !
Q INTERRUTTORE GENERALE CON FUSIBILE
Z FILTRO ANTIDISTURBO
ER ELETTRODO DI RIVELAZIONE
MV MOTORE VENTILATORE
TV TRASFORMATORE
HL1 LAMPADA DI PRIMA FIAMMA
HL2 LAMPADA DI SECONDA FIAMMA
HLB LAMPADA DI BLOCCO
SAL INTERRUTTORE DI LINEA
SPA PRESSOSTATO ARIA
STC TERMOSTATO CALDAIA
MAIN SWITCH WITH FUSE
INTERRUPTEUR GENERAL AVEC FUSIBLE
INTERRUPTOR GENERAL CON FUSIBLE
ANTJAMMING FILTER
FILTRE ANTIPARASITES
FILTRO DE PROTECION ANTIDISTURBIO
IONISATION PROBE
ELECTRODE D'IONISATION
ELECTRODO DE IONIZACION
MOTOR FAN
MUTEUR VENTILATEUR
MOTOR VENTILADOR
IGNITION TRANSFORMER
TRANSFORMATEUR D'ALLUMAGE
TRANSFORMADOR
1.ST FLAME LAMP
LAMPE DE 1^ ALLURE
ESPIA DE 1^ LLAMA
2.ST FLAME LAMP
LAMPE DE 2^ ALLURE
ESPIA DE 2^ LLAMA
LOCK-OUT LAMP
LAMPE DE SECURITE
ESPIA DE BLOQUEO
WORKING SWITCH
INTERRUPTEUR DE LIGNE
INTERRUPTOR DE LINEA
AIR PRESSURE SWITCH
PRESSOSTAT AIR
PRESOSTATO AIRE
BOILER THERMOSTAT
THERMOSTAT CHAUDIERE
TERMOSTATO CALDERA
STAB
YVGS
SPGmin
YVG1
STS
FIRST STAGE GAS SOLENOID VALVE
PRESOSTATO GAS DE MINIMA POT.
ELECTROVALVULA GAS DE SEGURIDAD
ELECTROVANNE GAZ DE SECURITE
EXTRA SAFETY GAS SOLENOID VALVE
ELETTROVALVOLA GAS DI SICUREZZA
ELECTROVALVULA GAS DE 1^ LLAMA
ELECTROVANNE GAZ PETITE ALLURE
GAS PRESSURE SWITCH MIN
PRESSOSTATO GAS DI MINIMA
PRESSOSTAT GAZ PRESSION MIN
ELETTROVALVOLA GAS DI PRIMA FIAMMA
TERMOSTATO DE ALTA-BAJA LLAMA
THERMOSTAT GRANDE-PETIRE ALLURE
TERMOSTATO DI ALTA-BASSA FIAMMA
HIGH-LOW FLAME THERMOSTAT
TERMOSTATO DE SEGURIDAD
THERMOSTAT DE SECURITE
SAFETY THERMOSTAT
TERMOSTATO DI SICUREZZA
SATRONIC DMG 972
97 865421 3 S1 S2CBA
T
P
T
P
ELETTROVALVOLA GAS DI SECONDA FIAMMAYVG2
SECOND STAGE GAS SOLENOID VALVE
ELECTROVANNE GAZ GRANDE ALLURE
ELECTROVALVULA GAS DE 2^ LLAMA
10-10-2003
T
P
T
P
T
P
S.p.A.
00 01 02 03 04 05 06 07 08 09
A
00 01 02 03 04 05 06 07 08 09
B
C
D
E
A
B
C
D
E
SOST.DA
IND.MOD.
SOST.IL
PROPRIETA' RISERVATA DELLA DITTA ECOFLAM S.p.A.
DESCRIZIONE MODIFICA
DISEGNATO
CONTROLLATO
DATA-FIRMA
DATA
FIRMA
DATA
FIRMA
COMUNICARE A TERZI IL CONTENUTO DEL PRESENTE.A TERMINE DI LEGGE E' VIETATO RIPRODURRE O
CONTROLLO DI TENUTAAPPARECCHIATURA
UFF.TECNICO-SETTORE ELETTRICO
DENOMINAZIONE
SIST. RIVELAZ. CODICE IND.MODIFICA
MOTORIDUTTORE
TV
ER
MV
Z
STC
STSSTAB
T8
HL1HL2 HLB
S3T6T7 B5 B4 NT2 T1 L1
T7T8 S3T6 B5 B4 NT2 T1 L1
50 Hz 230 V
Q
PE
L
N
PREVU POUR LE
CONTROLE D'ETANCHEITê
PREDISPOSED
LEKAGE CONTROL
PREDISPOSIZIONE
CONTROLLO DI TENUTA
BLUE
YELLOW-GREEN
BROWN
BLACK
CONTROL DE ESTANQUIDAD
PREDISPOSICION
T6
BROWN
ATTENERSI AI COLLEGAMENTI DEL RIQUADRO
YELLOW-GREEN
SUIVRE LES CONNEXIONS EN HAUT
POUR LA VERSION AVEC VPS 504
FOLLOW CONNECTIONS SHOWED ABOVE
FOR VERSION WITH VPS 504
DUNGS VPS 504
N
BLUE
T8T7 B5
BLACK
L1
PER LA VERSIONE CON VPS 504
PARA LA VERSION CON VPS 504
RESPECTAR LAS CONEXIONES ARRIBA
BEM05330
BLU 170-250-350 PAB / BLU 170-250-350 PAB ECOMAX LANDIS SQN 70.224A20
SATRONIC DMG 972
PREDISPOSTO ER
10-10-2003
CAME REGULATION 1e ALLURE
LEVA GIERRE TOTAL
LEVA DE REGULANCION BAJA LLAMA
LEVA DE REGULACION ALTA LLAMA
LEVA ABERTURA ELECTROV. ALTA LLAMA
CAME OUVERTURE ELETTROV. 2e ALLURE
III:
IV:
II:
I:
IV:
III:
CAMMA DI REGOLAZIONE 1 FIAMMA
CAMMA CHIUSURA TOTALE
CAMMA DI REGOLAZIONE 2 FIAMMA
HIGH FLAME ADJUSTING CAM
CAME REGULATION 2e ALLURE
FULL CLOSING CAM
HIGH FLAME SOL. VALVE OPENING CAM
LOW FLAME CAM
CAMMA APERTURA ELETTROV. 2 FIAMMA
CAME FERMENTURE TOTALE
I
II:
II
III
IV
I:
II:
IV:
III:
IV:
I:
III:
II:
I:
YVG YVGS
21
YVG2
3
SPGmin
SPA

Related product manuals