EasyManua.ls Logo

Ecoflam Multicalor 70 - Page 35

Ecoflam Multicalor 70
Print Icon
To Next Page IconTo Next Page
To Next Page IconTo Next Page
To Previous Page IconTo Previous Page
To Previous Page IconTo Previous Page
Loading...
pag.35
AB LB 1371 Multicalor 45 รท 140
IND.MODIFICA
SOST.DA
SOST.IL
IND.MOD.
PROPRIETA' RISERVATA DELLA DITTA ECOFLAM S.p.A.
DATA-FIRMA
DATA
FIRMA
CONTROLLATO
DESCRIZIONE MODIFICA
DISEGNATO
DATA
FIRMA
COMUNICARE A TERZI IL CONTENUTO DEL PRESENTE.A TERMINE DI LEGGE E' VIETATO RIPRODURRE O
CONTROLLO DI TENUTAAPPARECCHIATURA
UFF.TECNICO-SETTORE ELETTRICO
DENOMINAZIONE
SIST. RIVELAZ. CODICE
MOTORIDUTTORE
PAGINA DI
Q INTERRUTTORE GENERALE CON FUSIBILE
Z FILTRO ANTIDISTURBO
FU FUSIBILE
MP MOTORE POMPA
MV MOTORE VENTILATORE
TV TRASFORMATORE
UV FOTOCELLULA
FMV RELE' TERMICO MOTORE VENTILATORE
HLB LAMPADA DI BLOCCO
HLG LAMPADA GAS
HLg LAMPADA GASOLIO
KMV CONTATTORE MOTORE VENTILATORE
SAB DEVIATORE ALTA-BASSA FIAMMA
SAL INTERRUTTORE DI LINEA
SPA PRESSOSTATO ARIA
AIR PRESSURE SWITCH
PRESSOSTAT AIR
PRESOSTATO AIRE
OIL OR LAMP
TEMOIN MAZOUT
ESPIA GASOLEO
WORKING SWITCH
INTERRUPTEUR DE LIGNE
INTERRUPTOR DE LINEA
REMOTE CONTROL SWITCH (FAN MOTOR)
CONTACTEUR MOTEUR VENTILATEUR
TELERRUPTOR MOTOR VENTILATOR
LOCK-OUT LAMP
LAMPE DE SECURITE
ESPIA DE BLOQUEO
MOTOR THERMAL RELAY (FAN MOTOR)
RELAIS THERMIQUE MOTEUR VENTILATEUR
RELE' TERMICO MOTOR VENTILADOR
GAS LAMPE
LAMPE DE GAZ
ESPIA GAS
MOTOR FAN
MUTEUR VENTILATEUR
MOTOR VENTILADOR
UV CELL
CELLULE UV
FOTOCELULA
IGNITION TRANSFORMER
TRANSFORMATEUR D'ALLUMAGE
TRANSFORMADOR
ANTJAMMING FILTER
FILTRE ANTIPARASITES
FILTRO DE PROTECION ANTIDISTURBIO
MAIN SWITCH WITH FUSE
INTERRUPTEUR GENERAL AVEC FUSIBLE
INTERRUPTOR GENERAL CON FUSIBLE
OIL PUMP MOTOR
MOTEUR POMPE
MOTOR BOMBA
FUSE
FUSIBLE
FUSIBLE
HIGH-LOW FLAME SWITCH
INTERRUPTEUR GRANDE/PETIRE ALLURE
CONMUTADOR DE ALTA/BAJA LLAMA
ELECTROVANNE GAZ DE SECURITE
PRESSOSTATO GAS DI MINIMA
GAS PRESSURE SWITCH MIN
PRESSOSTAT GAZ PRESSION MIN
PRESOSTATO GAS DE MINIMA POT.
SPGmin
ELETTROVALVOLA GASOLIO DI SECONDA FIAMMA
SECOND STAGE OIL SOLENOID VALVE
ELETTROVALVOLA GASOLIO DI PRIMA FIAMMA
FIRST STAGE OIL SOLENOID VALVE
ELECTROVANNE MAZOUT PETITE ALLURE
ELECTROVALVULA DE GASOLEO 1^ LLAMA
ELECTROVALVULA GAS DE SEGURIDAD
ELETTROVALVOLA GASOLIO DI SICUREZZA
EXTRA SAFETY OIL SOLENOID VALVE
ELECTROVANNE MAZOUT DE SECURITE
ELECTROVALVULA DE GASOLEO DE SEGURIDAD
ELECTROVANNE MAZOUT GRANDE ALLURE
ELECTROVALVULA DE GASOLEO 2^ LLAMA
YVgS
YVg2
YVg1
ELETTROVALVOLA GAS DI PRIMA FIAMMA
FIRST STAGE GAS SOLENOID VALVE
ELECTROVANNE GAZ PETITE ALLURE
ELECTROVALVULA GAS DE 1^ LLAMA
HIGH-LOW FLAME THERMOSTAT
THERMOSTAT GRANDE-PETIRE ALLURE
TERMOSTATO DE ALTA-BAJA LLAMA
ELETTROVALVOLA GAS DI SICUREZZA
EXTRA SAFETY GAS SOLENOID VALVE
YVGS
YVG1
TERMOSTATO DI SICUREZZA
SAFETY THERMOSTAT
THERMOSTAT DE SECURITE
TERMOSTATO CALDAIA
BOILER THERMOSTAT
THERMOSTAT CHAUDIERE
TERMOSTATO CALDERA
TERMOSTATO DI ALTA-BASSA FIAMMA
INTERRUTORE OLIO-GAS
SWITCH HEAVY OIL - GAS
INTERRUPTEUR FUEL LOURD - GAZ
INTERRUPTOR ACEITE PESADO - GAZ
TERMOSTATO DE SEGURIDAD
STAB
SAgG
STS
STC
SWITCH HEAVY OIL - GAS
INTERRUPTEUR FUEL LOURD - GAZ
INTERRUPTOR ACEITE PESADO - GAZ
HIGH-LOW FLAME THERMOSTAT
THERMOSTAT GRANDE-PETIRE ALLURE
TERMOSTATO DE ALTA-BAJA LLAMA
BOILER THERMOSTAT
THERMOSTAT CHAUDIERE
TERMOSTATO CALDERA
SAFETY THERMOSTAT
THERMOSTAT DE SECURITE
TERMOSTATO DE SEGURIDAD
EXTRA SAFETY GAS SOLENOID VALVE
ELECTROVANNE GAZ DE SECURITE
ELECTROVALVULA GAS DE SEGURIDAD
FIRST STAGE GAS SOLENOID VALVE
ELECTROVANNE GAZ PETITE ALLURE
ELECTROVALVULA GAS DE 1^ LLAMA
EXTRA SAFETY OIL SOLENOID VALVE
ELECTROVANNE MAZOUT DE SECURITE
ELECTROVALVULA DE GASOLEO DE SEGURIDAD
FIRST STAGE OIL SOLENOID VALVE
ELECTROVANNE MAZOUT PETITE ALLURE
ELECTROVALVULA DE GASOLEO 1^ LLAMA
SECOND STAGE OIL SOLENOID VALVE
ELECTROVANNE MAZOUT GRANDE ALLURE
ELECTROVALVULA DE GASOLEO 2^ LLAMA
GAS PRESSURE SWITCH MIN
PRESSOSTAT GAZ PRESSION MIN
PRESOSTATO GAS DE MINIMA POT.
AIR PRESSURE SWITCH
PRESSOSTAT AIR
PRESOSTATO AIRE
WORKING SWITCH
INTERRUPTEUR DE LIGNE
INTERRUPTOR DE LINEA
HIGH-LOW FLAME SWITCH
INTERRUPTEUR GRANDE/PETIRE ALLURE
CONMUTADOR DE ALTA/BAJA LLAMA
REMOTE CONTROL SWITCH (FAN MOTOR)
CONTACTEUR MOTEUR VENTILATEUR
TELERRUPTOR MOTOR VENTILATOR
OIL LAMP
TEMOIN MAZOUT
ESPIA GASOLEO
GAS LAMP
LAMPE DE GAZ
ESPIA GAS
LOCK-OUT LAMP
LAMPE DE SECURITE
ESPIA DE BLOQUEO
MOTOR THERMAL RELAY (FAN MOTOR)
RELAIS THERMIQUE MOTEUR VENTILATEUR
RELE' TERMICO MOTOR VENTILADOR
UV CELL
CELLULE UV
FOTOCELULA
IGNITION TRANSFORMER
TRANSFORMATEUR D'ALLUMAGE
TRANSFORMADOR
MOTOR FAN
MUTEUR VENTILATEUR
MOTOR VENTILADOR
OIL PUMP MOTOR
MOTEUR POMPE
MOTOR BOMBA
FUSE
FUSIBLE
FUSIBLE
ANTJAMMING FILTER
FILTRE ANTIPARASITES
FILTRO DE PROTECION ANTIDISTURBIO
MAIN SWITCH WITH FUSE
INTERRUPTEUR GENERAL AVEC FUSIBLE
INTERRUPTOR GENERAL CON FUSIBLE
HLBT LAMPADA DI BLOCCO TERMICO
THERMAL LOCK-OUT LAMP
LAMPE DE THERMAL DE SECURITE
ESPIA DE BLOQUEO RELE TERMICO
RELE'KA
RELAY
RELAIS
RELE'
T
P
T
P
KAx RELE'
RELAY
RELAIS
RELE'
00 01 02 03 04 05 06 07 08 09
A
00 01 02 03 04 05 06 07 08 09
B
C
D
E
A
B
C
D
E
S.p.A.
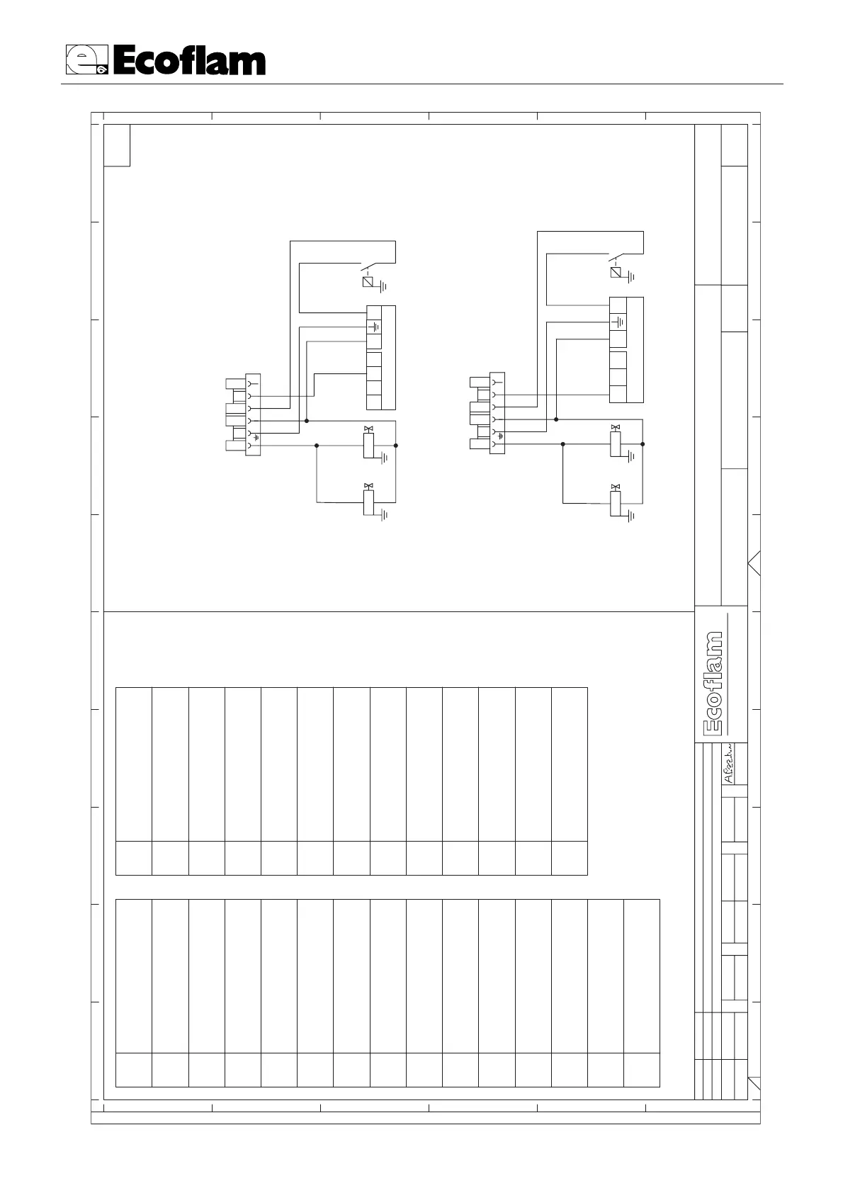
BEM43149
MULTICALOR 45 - 70 (GAS PR - GASOLIO AB) LANDIS SQN 31.251A2700
LANDIS LGB 22.330A27 UV
10-06-2004
2/2
SPGmin
YELLOW-GREEN
YVG YVGS
T6T8 L1NB5T7
DUNGS VPS 504
BROWN
BLACK
BLUE
T1NL1 S3T2
YVGSYVG
L1
YELLOW-GREEN
BLACK
DUNGS VDK 200-A
11413
BROWN
BLUE
3
SPGmin
S3N T1 T2

Related product manuals