EasyManua.ls Logo

EFA 66 - Page 21

EFA 66
Print Icon
To Next Page IconTo Next Page
To Next Page IconTo Next Page
To Previous Page IconTo Previous Page
To Previous Page IconTo Previous Page
Loading...
Schmid & Wezel
D 75433 Maulbronn
Seite/ Page
20/ 22
Ausführung/ Version
02.2009
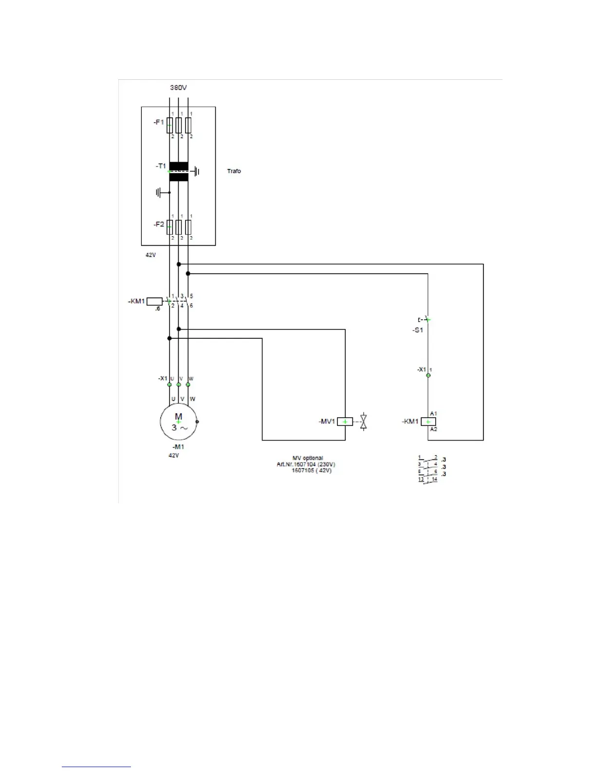
A.5.3 Schalterschütz 42V
A.5.4 Leitungsquerschnitte für EFA Sägen mit Schalterschütz
Schaltpläne für den schaltschütz liegen im Steuerungskasten innen./
The circuit diagrams of the control system are in the control box.
Bei Bedarf können diese von Schmid & Wezel separat geliefert werden./
If you require additional copies of the diagrams, please contact us, quoting the following order numbers:
Artikelnummer/ Product no. 001 604 101 (42V)
Leitungsquerschnitt der Zuleitung ( Länge L)
zwischen Transformator und Steuerungskasten.
Querschnitt ( A) 3-adrig erforderlich. Leitungsmaterial: Kupfer
The following specifications refer to line L
between the transformer and the control box.
Cross-section (A) must consist of 3 wires. Conductor material: copper

Table of Contents

Related product manuals