EasyManua.ls Logo

eka EKF 1111 E UD - Installation; Connection Layout

eka EKF 1111 E UD
27 pages
Print Icon
To Next Page IconTo Next Page
To Next Page IconTo Next Page
To Previous Page IconTo Previous Page
To Previous Page IconTo Previous Page
Loading...
TECNOEKA Srl ______________________________________________________________ use and instruction manual
page 8 _________________________________________________________________________________________
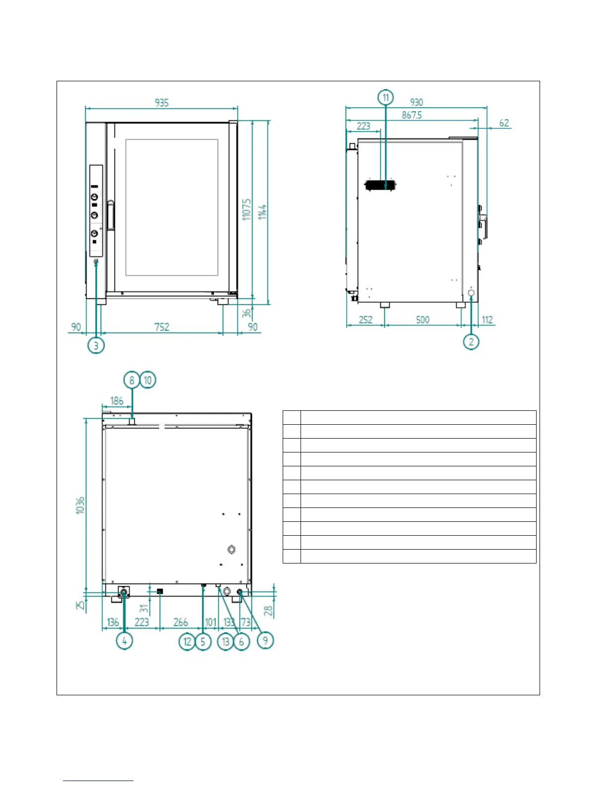
Installation / connection layout
2 SERIAL SOCKET
3 SOCKET TO CONNECT THE SENSOR TO THE CORE
4 WATER OUTLET (DN 30 PIPE)
5 WASHING WATER INLET
6
WATER INLET (THREADED ¾” SOLENOID)
8 STEAM OUTLET
9 CABLE CLAMP (POWER LEAD)
10
WARNING! HOT SURFACE
11
DO NOT BLOCK VENTS
12
ACCESS OF WATER MAX. 200kPa
13
ACCESS OF SOFTENED WATER MAX. 200kPa
Fig. 1 (
Fig. 1 (Fig. 1 (
Fig. 1 (Dimensions
DimensionsDimensions
Dimensions
in mm.)
in mm.)in mm.)
in mm.)

Related product manuals