EasyManua.ls Logo

elco Combi 24 - Page 55

elco Combi 24
68 pages
Print Icon
To Next Page IconTo Next Page
To Next Page IconTo Next Page
To Previous Page IconTo Previous Page
To Previous Page IconTo Previous Page
Loading...
55
Commissioning
Combustion analysis
Settingson the gas valve (Step 3/3) (not for Belgium)
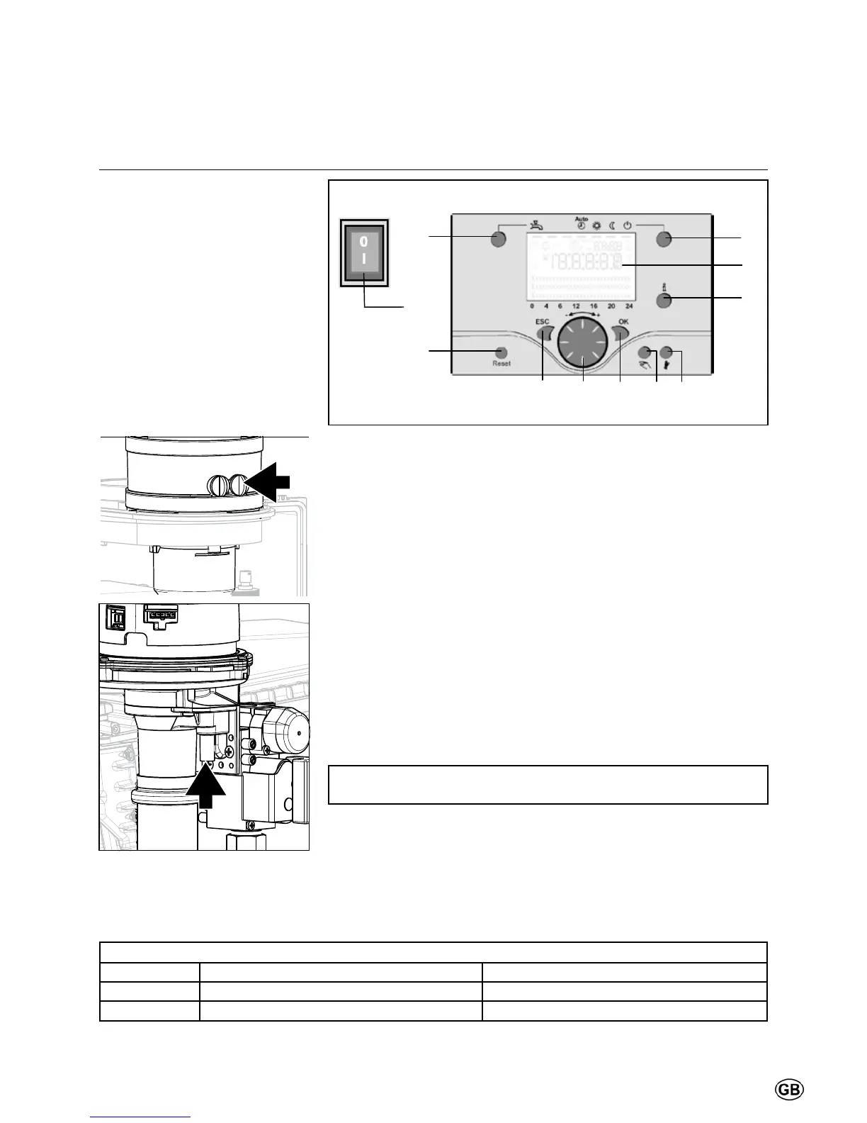
Legend
a Measuring point of the waste
gas probe
b Set screw for O
2
/CO
2
Step 3: Adjustment on the gas valve
Only if the measured values are
outside the range of the table on the
previous page.
- Open the boiler as described on
page 57.
- Set the boiler on full load (see Step
1)
- The O
2
/CO
2
values are set by using
anAllenkey(4mm),oralargeat
head screwdriver, on the screw “B”.
Please observe the following
rotating direction:
- Clockwise means more O
2
/ less
CO
2
- Counterclockwise means less O
2
/
more CO
2
a
b
M
A
H
B C D E F
I
L
G
Legend:
A On/O󰀨switch
B Back button (ESC)
C Room temperature control button
D Conrmationbutton(OK)
E Function button for manual
operation
F Chimney sweep function button
G Info button
H Reset button
I Operation mode button for heating
circuit(s)
L Display
M Operating mode button for DHW
Adjustment of the gas valve in case the measured values lies out of range of the values on full load (Step 3)
Full load Natural gas E (G20), LL (G25) Propane (G31)
O
2
4,7% 5,1%
CO
2
9,0% 10,3%
Values valid with closed air box.
After this setting has been made, once more test the O
2
/CO
2
value at full
load and low load. See Step 1 and 2.

Related product manuals