EasyManua.ls Logo

Electrolux 2604 - Page 6

Electrolux 2604
30 pages
Print Icon
To Next Page IconTo Next Page
To Next Page IconTo Next Page
To Previous Page IconTo Previous Page
To Previous Page IconTo Previous Page
Loading...
6
5938 035 01
1d
USA
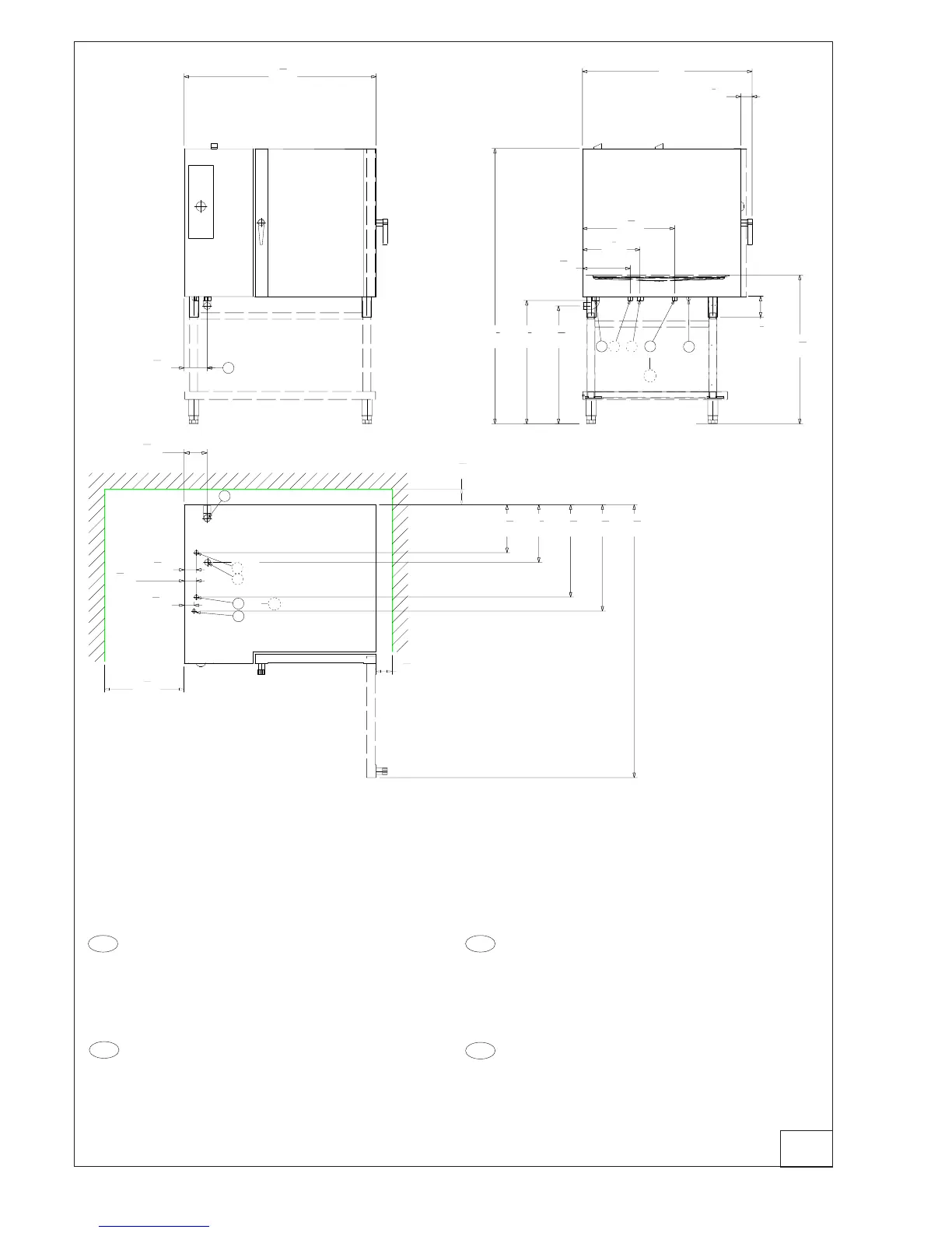
I - Power supply cable inlet
B - Water supply connection (0.5- 5 °F) ø3/4" NPT gasline
C - Water drain connection ø1"1/4 NPT gasline
N - Steam condens. water connection ø3/4" NPT gasline
D - Overflow drain pipe (AIR-BREAK) (Do not connect)
( ^) FUNCTIONAL LEVEL
IT
I - Entrata cavo elettrico
B - Attacco alim. acqua (0,5 - 5 °F) ø3/4" NPT gasline
C - Collettore scarico acqua ø1"1/4 NPT gasline
N - Attacco acqua Conden. fumane ø3/4" NPT gasline
D - Scarico di sicurezza (AIR-BREAK) (Non collegare)
( ^) LIVELLO FUNZIONALE
47
9
16
"
1208 mm
5
23
32
"
145 mm
C
67
17
32
"
1715 mm
3
1
16
"
77.5 mm
3
1
16
"
77.5 mm
2
15
32
"
62.5 mm
11
27
32
"
301 mm
22
27
32
"
580 mm
26
5
16
"
668 mm
14
1
4
"
362 mm
3
15
16
"
100 mm
19
11
16
"
500 mm
3
15
16
"
100 mm
C
B
I
N
D
cod. 597848600
30
1
2
"
775 mm
29
3
16
"
741 mm
68
1
8
"
1730 mm
42
"
1067 mm
5
1
8
"
130 mm
36
13
16
"
935 mm
2
3
4
"
70 mm
11
27
32
"
301 mm
14
1
4
"
362 mm
22
27
32
"
580 mm
C
B
I
D
N
5
23
32
"
145 mm
(A ^)
(B ^)
(A ^)
(C ^)
(A ^)
(B ^)
B
(A ^)
(C ^)
(A ^)
(B ^)
(A ^)
(B ^)
B
Mod.: 10 GN 2/1
CDN
I - Entrée câble électrique
B - Entrée eau (0,5 - 5 °F) ø3/4" NPT gasline
C - Collecteur évacuation eau ø1"1/4 NPT gasline
N - Entrée eau Conden.vapeurs ø3/4" NPT gasline
D - Évacuation de secours (AIR-BREAK) (Ne pas raccorder)
( ^) NIVEAU FONCTIONNEL
ES
I - Ingreso cable eléctrico
B - Conexión de agua (0,5 - 5 °F) ø3/4" NPT gasline
C - Colector del desagüe ø1"1/4 NPT gasline
N - Entrada del agua de condensación ø3/4" NPT gasline
D - Desagüe de seguridad (AIR-BREAK) (No conectar)
( ^) NIVEL FUNCIONAL

Related product manuals