EasyManua.ls Logo

Electrolux MC1751E - Troubleshooting Chart

Electrolux MC1751E
33 pages
Print Icon
To Next Page IconTo Next Page
To Next Page IconTo Next Page
To Previous Page IconTo Previous Page
To Previous Page IconTo Previous Page
Loading...
SOI 01.05 FV 13/33 599 36 78-06
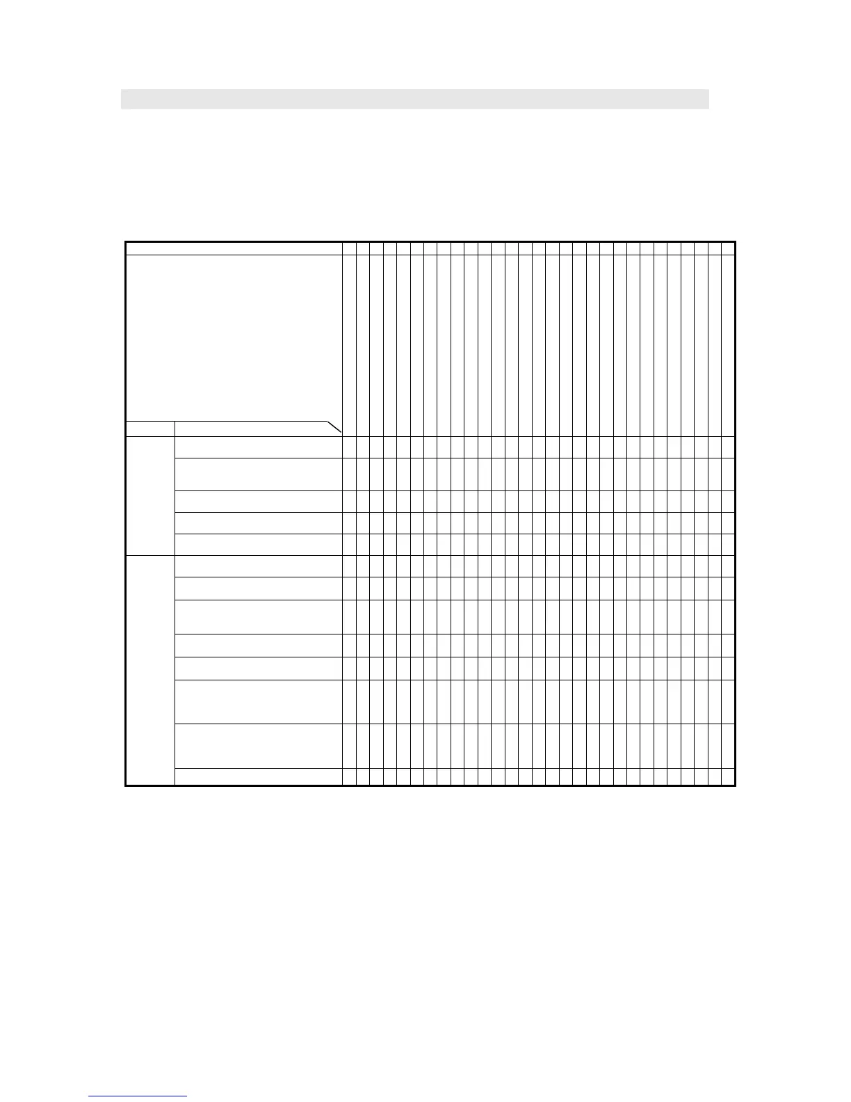
TROUBLESHOOTING CHART
When troubleshooting the microwave oven, it is helpful to follow the Sequence of Operation in performing the
checks. Many of the possible causes of trouble will require that a specific test be performed. These tests are
given a procedure letter which will be found in the “Test Procedure” section.
IMPORTANT: If the oven becomes inoperative because of a blown fuse F1. Check the monitored latch
switch and monitor switch before replacing the F8A fuse.
TEST PROCEDURE
A
B C
D E E E F F G H I I J J K L M
CONDITION
PROBLEM
MAGNETRON
HIGH VOLTAGE TRANSFORMER
H.V. RECTIFIER ASSY
H.V. HARNESS
HIGH VOLTAGE CAPACITOR
MONITORED LATCH SWITCH
STOP SWITCH
MONITOR SWITCH
MAG THERMAL CUT-OUT 125°C
THERMAL CUT-OUT 125°C (OVEN)
FUSE F1
NOISE FILTER
TURNTABLE MOTOR
FAN MOTOR
TC TRANSFORMER
CONTROL UNIT
SWITCH UNIT
RELAY RY1,3,4
FOIL PATTERN ON P.W.B.
POWER SUPPLY CORD
SHORTED WIRE HARNESS
OPENED WIRE HARNESS
OVEN LAMP
BLOCKED VENTILATION OPENINGS
WRONG OPERATION
MIS-ADJUSTMENT OF SWITCHES
HOME FUSE OR BREAKER
NO POWER AT WALL OUTLET
BLOKED COOLING FAN
Home fuse blows when power cord is
plugged into wall outlet.
"88:88"does not operate in display
when power cord is plugged into wall
outlet.
Display does not operate properly
when STOP button is touched.
Oven lamp does not light, when door
is opened. (Display operates).
OFF
CONDITION
Oven does not start when START
button is touched.(Display operates).
Fan motor does not operate (Oven
lamp lights).
Turntable motor assembly does not
operate (Oven lamp lights).
Oven or electrical parts does not stop
when timer knob is at "0" or STOP
button is touched.
Display operates properly but all
electrical parts do not operate.
Oven goes into cook cycle but shuts
down before end of cooking cycle.
Oven seems to be operating but little
or no heat is produced in oven load
(Microwave power control is set at
HIGH).
Oven does not seem to be operating
properly during variable cooking
condition(Oven operates properly at
HIGH).
COOKING
CONDITION
Fuse F8A blows (F1)

Related product manuals