EasyManua.ls Logo

Electrolux MC1751E - Schematic Diagrams

Electrolux MC1751E
33 pages
Print Icon
To Next Page IconTo Next Page
To Next Page IconTo Next Page
To Previous Page IconTo Previous Page
To Previous Page IconTo Previous Page
Loading...
SOI 01.05 FV 32/33 599 36 78-06
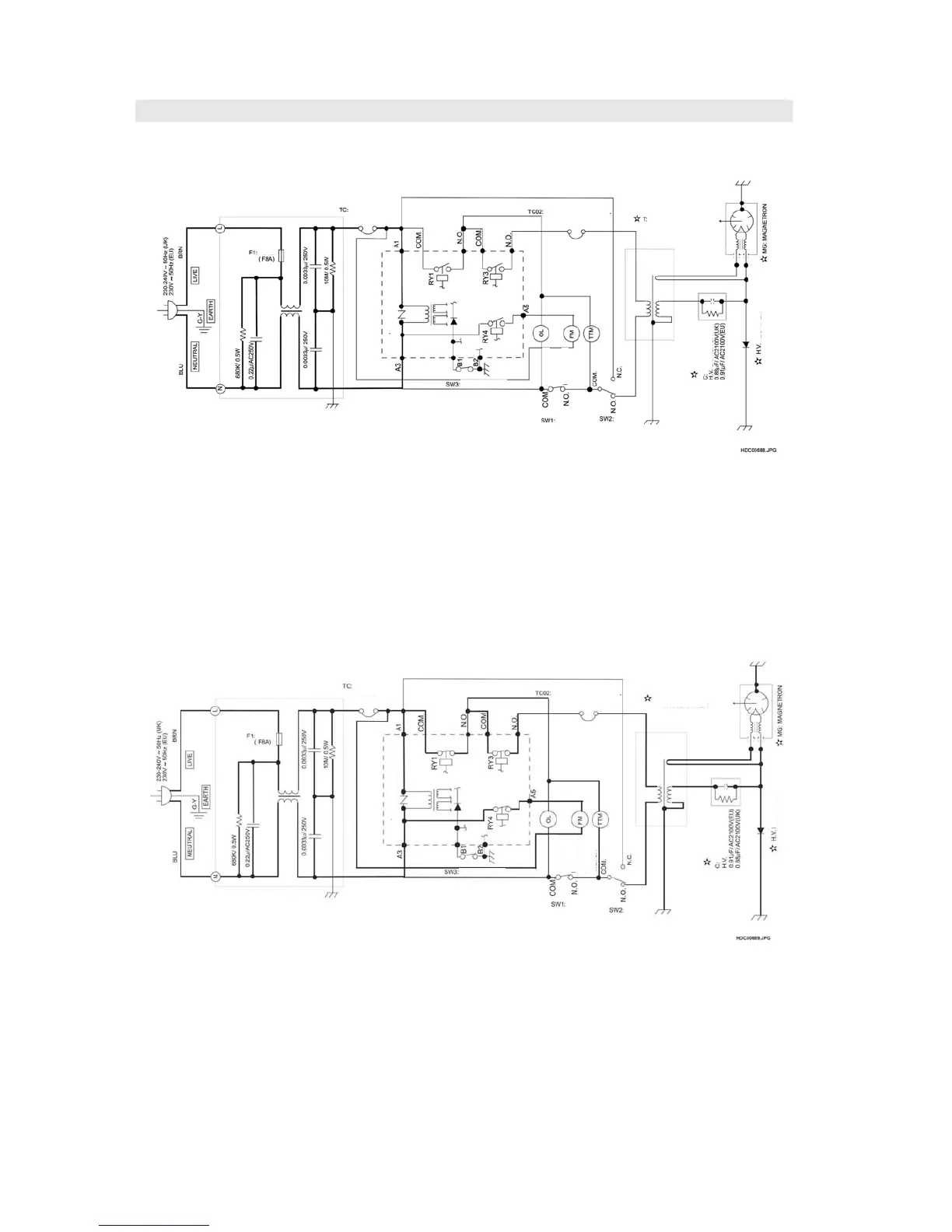
SCHEMATIC DIAGRAMS
Figure 0-1 Oven Schematic-OFF Condition, Door Closed.
Figure 0-2 Oven Schematic-ON Condition, Door Closed.
* INDICATES COMPONENTS WITH
POTENTIAL ABOVE 250V
OVEN THERMAL
CUT- OUT 125°C
MAGNETRON
THERMAL
CUT- OUT 125°C
HIGH VOLTAGE
TRANSFORMER
CAPACITOR
RECTIFIER
MONITO
R
SWITCH
MONITORED
LATCH SWITCH
STOP SWITCH
OVEN LAMP
FAN MOTOR
TURNTABLE
MOTO
R
TRANSFORMER T/C
NOISE SUPRESSION COIL
NIOSE FILTER
OVEN THERMAL
CUT- OUT 125°C
MAGNETRON
THERMAL
CUT- OUT 125°C
HIGH VOLTAGE
TRANSFORMER
CAPACITOR
RECTIFIER
MONITO
R
SWITCH
MONITORED
LATCH SWITCH
STOP SWITCH
OVEN LAMP
FAN MOTOR
TURNTABLE
MOTO
R
TRANSFORMER T/C
NOISE SUPRESSION COIL
NIOSE FILTER

Related product manuals