EasyManua.ls Logo

Elka ES 80 - 11 Layout in the Barrier

Default Icon
46 pages
Print Icon
To Next Page IconTo Next Page
To Next Page IconTo Next Page
To Previous Page IconTo Previous Page
To Previous Page IconTo Previous Page
Loading...
ES 50 – ES 80
31
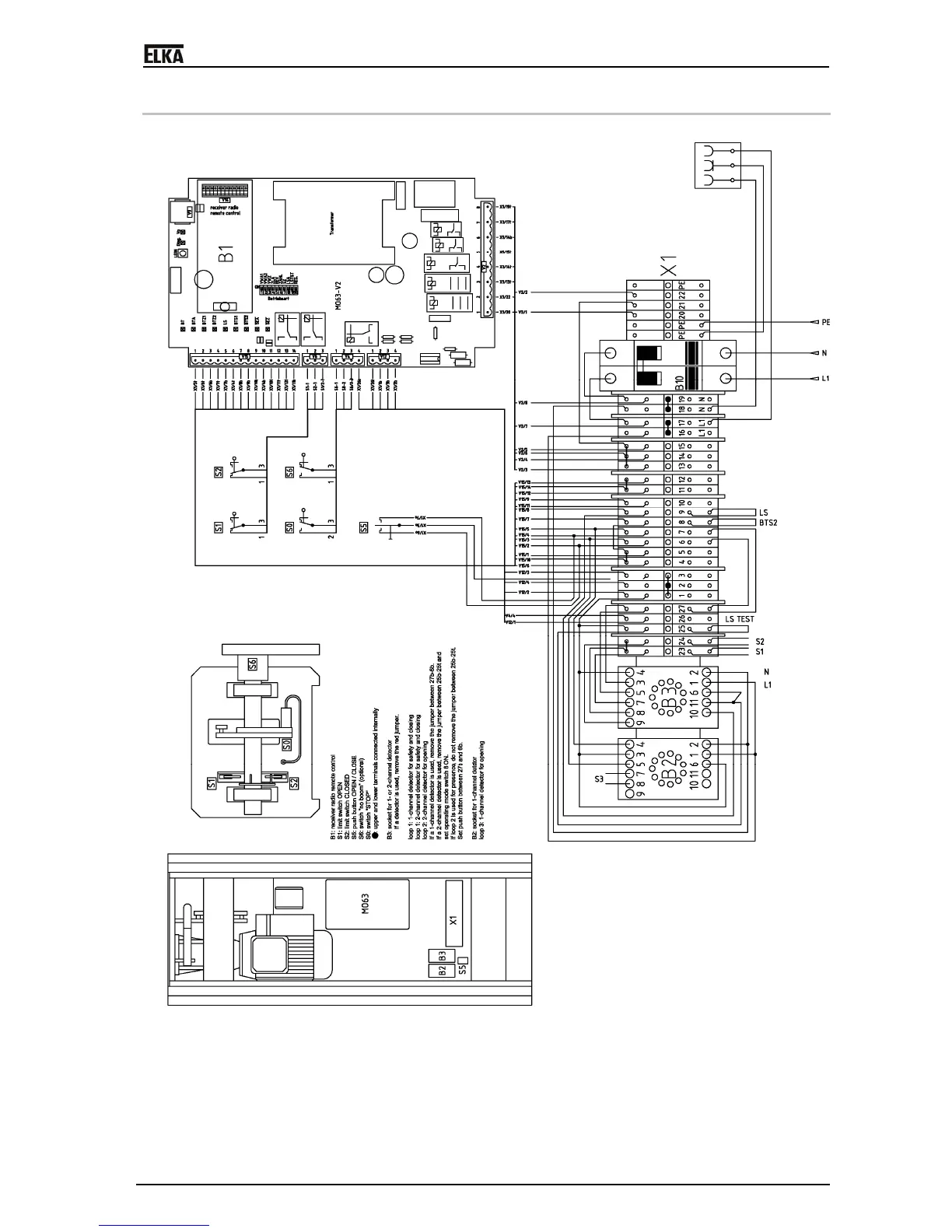
11 Layout in the barrier
Drawing 12

Table of Contents

Related product manuals