EasyManua.ls Logo

Elma T460 - Page 39

Default Icon
109 pages
Print Icon
To Next Page IconTo Next Page
To Next Page IconTo Next Page
To Previous Page IconTo Previous Page
To Previous Page IconTo Previous Page
Loading...
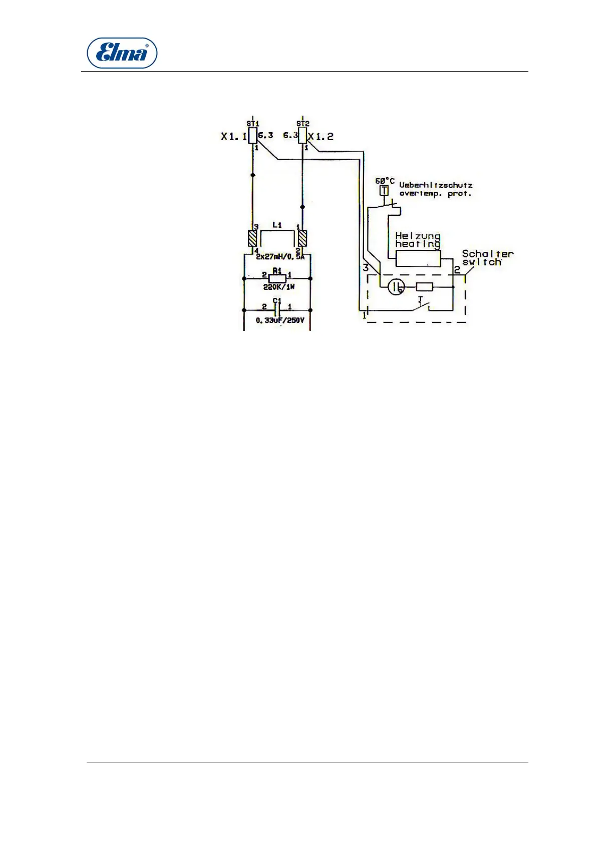
Faulty operating and switch elements
© Elma GmbH & Co KG SM/Transsonic_LC/1104/D
37
interference filter heating
Illustration 8.6.3. Wiring of heating switch, here lighted model. For the
unlighted heating switch connection 3 is irrelevant.

Table of Contents

Related product manuals