EasyManua.ls Logo

Emerson CR035 - Page 64

Emerson CR035
70 pages
Print Icon
To Next Page IconTo Next Page
To Next Page IconTo Next Page
To Previous Page IconTo Previous Page
To Previous Page IconTo Previous Page
Loading...
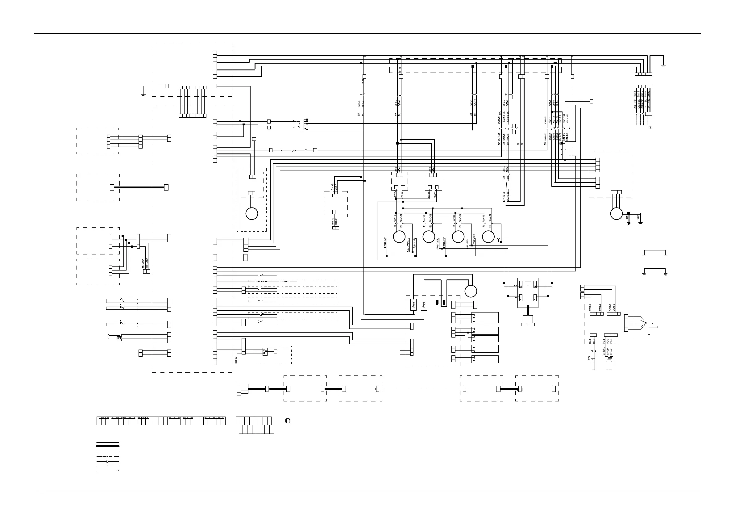
56 Appendix 1 Circuit Diagram
Liebert.CRV+ Series Air Cooled Precision Air Conditioner User Manual
380V415V /60Hz 3N
L2
3
4
L1
1
2
NL 3
6
5
2 4 6
1 5
Compressor
breaker
QF1
Main switch
QS
2 4
1 33
Humidifier
breaker
QF5
Factory supplied line voltage wiring
Factory supplied 24 volt wiring
Device own line
Notes
Humidifier
pot
BK BK
Ethernet or CAN wiring
Inline quick disconnect
Wire color code
BK- Black P- Purple
R-Red
WH-White
BL- Blue
BR-Brown
Y/GN-Yellow green
YE-Yellow
Terminal block connector
Naked crimping connector
J34J1
Temp .and Humi .
sensor
J21
1
2
3
4
5
6
BK
BR
BK
BR
BK
BR
7
8
BK
BR
J19
1
2
3
4
5
6
BK
BR
BK
BK
7
8
BK
BR
NC
Clogged filter alarm
COM
NO
1 2 3 4 5 6 7 8
J13
1
2
BK
BK
Transformer TC
TC-6
TC-5
BK
BK
4
TC-1
3
TC-2
J18
1
2
3
BK
BK
4
5
J31
1
2
BK
BK
1 2 3 4 5 6 7 8
J30
J29
8
7
6
5
4
3
BL
GR
BR
2
1
BK
1
2
J15-1
J15-2
BK
BR
0V
24V
24
51
TB2-51
TB2-24
1 2
High water alarm
1
2
BK
BR
1 2
24V
0V
J39
1
2
A1
B1
12V
GND
2
1
4
3
Humidifier board
TAM
BK BK
G
G0
ON
GND
DR
EV2
G
EV1
LS
LS
CS
CS
AL
AL
+ VR
SET
GND
AB
AB
2 4
1 3
Transformer
breaker
QF3
24V
0V
J28
1
2
3
4
5
6
7
8
9
10
Drain manually0
Humidify norminally1
Drain solenoid valve
Water level probe
Electrical conductivity
probe
J21-1
J21-2
J21-3
J21-4
J21-5
J21-6
J21-7
J21-8
J19-3
J19-4
J19-5
J19-6
J19-7
J19-8
J15
J18-T01
J31-1
J12-12V
J12- GND
J31-2
J13-1
J13-2
J18-T0- VAC
J12
J39-B
J39-A
BK
BR
ACM02U2
ACM 02A2
ACM02D1
J01
J01-7
J01-5
J01-3
J01-1
EEV controller
1
BK
J02-1
Humidifier alarm
Water under floor switch
38
37
Remote swith
TB2-37
TB2-38
1 2
A1
A2
2
1
4
3
6
5
22
21
Compressor
contactor
KM1
3 4
1 2
2 3
4
1
Fan 4Fan 3Fan2Fan
1
G10
10V
24VDC
power
module
Condensate
pump
J4
2
1
1
2
3
4
5
1 2 3 4
A1
B1
WS-2
Water line switch
WS-1
N
N
N
J28-1
J28-2
J02
1
J03
J03Y/G
PWR COM
EEV
S2 P0
BK
BR
Low pressure
sensor
BK
BR
J28-3
J28-4
76
75
Common alarm
TB 2-75
TB 2-76
Fan breaker
QF4
Optional
Optional
AL
AL
+ VR
SET
EV2
EV1
G
DR
GND
ON
LS
LS
CS
CS
G0
G
Optional
Optional
BR
J18-T02
Remote sensor 2
Remote sensor 1
Remote sensor 9 Remote sensor10
2 4 6
1 5
Heat
breaker
QF2
3
A1
A2
2
1
4
3
6
5
22
21
Heat
contactor
KM2
N N
ST1-C ST1-NC
Heat alarm
N
A1 B112V GND
J1-1 J1-2
ST2-C ST2-NC
Optional
94 95
EEV
153
SO4FI
High pressure alarm
70
71
Connection bars
N
A1
B1
12
00
Terminal block
GNDGND 12V12V B1 B124V24V0V A1A100 12 N N N NA1 B1G1010V 51 24 37 38 70 71 75 76
A2 B2 12VGND
94 95
TB1 TB2 TB3
GND12V
High pressure sensor
Exhaust air probe
RT3
Delivery air probe
1
RT1
A2
B2
12V
GND
RDU-SIC1
J23
1
2
3
J23-1
R
J23-2
BR
J23-3
BK
J8
1
2
J8-1
J8-2
BK
BK
J25
1
2
J25-1
J25-2
BK
BK
3
4
J14
1
2
J14-BBK
BR
12
GND
A
B
Delivery air probe
2
RT2
J25-3
J25-4
BK
BK
RDU-SIC2
12
GND
A
B
62
61
J20
1
2
J20-CANH
J20-CANL
BK
BR
BKJ18-T03
N
YE
WH
BK
BR
J19-1
J19-2
TB3
61 62 63 64
TB2
63
24V
TB1-24V
TB 2-63
Freon solenoid valve
Y1
XPE
XPE
BK
BK
J28-5
J28-6
64
Y1
Optional
0V
TB1-10V
TB1-G10
TB1-
TB1-
TB2-61
TB2-62
J14-A
TB2- B2
TB2- A2
J34J1
TB1-B1
TB1-A1
J4- GND
J4-12V
J4-A
J4-B
TB1- GND
TB1-12V
TB1-A1
TB1-B1
TB1-0V
TB1-24V
BK
BKTB1-0V
TB1-24V
TB1-94
TB1-95
BK
RE2 RE1
RE2 RE1
TB1-24V
TB1-0V
TB1-A1
TB1-B1
BK BR BR BK
TB 2-64
TB1-24V
TB 1-0V
AB
TB1-10V
TB1-G10
TB1-A1
TB1-B1
0V 0V 24V
12V GND
TB2- GND
TB2-12V
B
K
B
R
BK BK BK BK
BK
BK BRBK
TB2-70
TB2-71
GR-Grey
PEN
154
161
162
TB2
BK BR BK BR R
1
2 3
4
4FI -1
4FI -2
4FI -4
4FI -3
A` B` C` N`
A B C N
EMI
G`
G
1GND
2GND 3GND
4GND
L N
DC+ DC-
R48-1000 R48-1000
4
3
N
4FI -1GND
4FI-2 GND
4FI -4 GND
4FI -3 GND
J65
J69 J70
J65
J69 J70
L N
DC+ DC-
12VDC
power
module
12 00
EMI -A`
EMI -B`
EMI -C`
EMI -N`
EMI -G`
HP -5V
HP- VIN
HP-GND
Ground point of
the shield layer
Ground point of
the electrical
control box
L NCN1
V0+V0-CN 2
High Pressure Switch
FAN1-GND
YE
WH
FAN1- GND
YE
WH
FAN1- GND
YE
WH
FAN1-TACH
FAN 1-GND
HPS
HPS
Suction air probe
QF3-1
QF3-3QF5-1
QF4-1
QF4-3
HPS
12V
GND
A1
B1
12V
GND
TB1-
TB1-
12V
GND
BR BL
Grounding of
the cabinet
Grounding of
the cabinet
Grounding of
the back door
Grounding of
the front door
AC detection board
Display panel
50Hz
3
Compressor
1
U V W
Compressor
transducer
12V
GND
A
B
L1
L2
L3
Ground point of
the cabinet
Y/G
Y/G
BK
BR
BR
BK
R
BK
BR+BK
BR
WH
WH
BK
BK
Filling solenoid valve
Control board
Power module Power module
Grounding of the
electrical control box
Figure 2 CR025 circuit diagram

Table of Contents

Related product manuals