EasyManua.ls Logo

Emerson MVS205 - Page 23

Emerson MVS205
56 pages
Print Icon
To Next Page IconTo Next Page
To Next Page IconTo Next Page
To Previous Page IconTo Previous Page
To Previous Page IconTo Previous Page
Loading...
Instruções para um uso seguro — MVS205 Página 3
Peça D301205X012
Conexão do conduíte
Fornece um dispositivo de selagem com
certificação Eex d (como uma selagem do conduíte
com composto endurecível) imediatamente à
entrada do invólucro da válvula. Para temperaturas
ambientes acima de 70°C, a fiação e composto
endurecível dentro da selagem do conduíte devem
ser adequados para, pelo menos, 90°C.
Os elementos de bloqueio das aberturas não
utilizadas devem ser tanto o bujão do conduíte
fornecido pelo fabricante ou um tipo certificado à
prova de fogo, adequado às condições de uso e
corretamente instalados.
MVS205aa.dsf
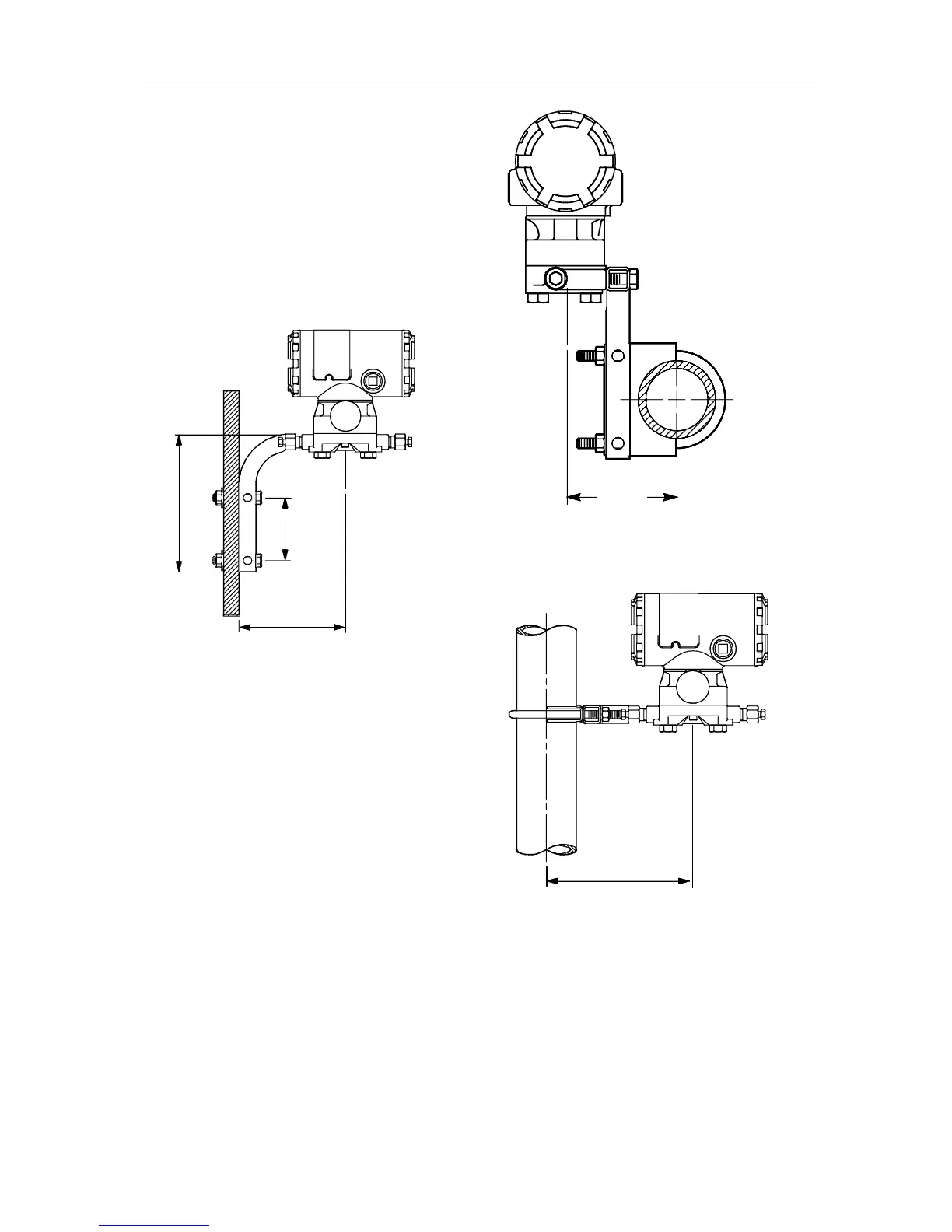
71 mm
120 mm
156 mm
Figura 3. Montagem em painel MVS205
MVS205a.dsf
I
N
E
X
P
L
O
S
I
V
E
A
T
M
O
S
P
H
E
R
E
-
K
E
E
P
T
I
G
H
T
W
H
E
N
C
I
R
C
U
I
T
A
L
I
V
E
-
-
W
A
R
N
I
N
G
-
90 mm
Figura 4. Montagem do tubo MVS205 (Tubo horizontal)
MVS205ac.dsf
159 mm
Figura 5. Montagem do tubo MVS205 (Tubo vertical)
6. Para ganhar acesso às terminações no sensor MVS, use
uma chave allen sextavada de 3 mm para remover a
tampa de cobertura do sensor. Em seguida, desaperte
a tampa da extremidade do sensor.
A placa do circuito de interface no cabeçote de
componentes eletrônicos do MVS205 permite
que o MVS se conecte (seja alimentado) e se
comunique com um ROC ou FloBoss utilizando
uma conexão serial de 4 fios EIA-485 (RS-485).

Other manuals for Emerson MVS205

Related product manuals