EasyManua.ls Logo

Emerson MVS205 - Page 35

Emerson MVS205
56 pages
Print Icon
To Next Page IconTo Next Page
To Next Page IconTo Next Page
To Previous Page IconTo Previous Page
To Previous Page IconTo Previous Page
Loading...
ﺕﺍﺩﺎﺷﺭﺇ ﻦﻣﻵﺍ ﻡﺍﺪﺨﺘﺳﻻﺍ MVS205 ﺔﺤﻔﺻ3
ءﺰﺠﻟﺍD301205X012
ﻯﺮﺠﻤﻟﺍ ﺔﻠﺻﻭ
ﺏﺮﺴﺗ ﻊﻨﻣ ﺯﺎﻬﺟ ﺐﻴﻛﺮﺘﺑ ﻢﻗEEx ﺩﺎﻤﺘﻋﺎ""
ّ
ﻴﺒﻣ ﻞﺧﺪﻣ ﺪﻨﻋ (ﺩﺍﺪﻋﺇ
ّ
ﻛﺮﻣ ﻊﻣ ﻯﺮﺠﻤﻠﻟ ﺏﺮﺴﺗ ﻊﻧﺎﻣ ﻞﺜﻣ)
ﺍﺮﺤﻟﺍ ﺕﺎﺟﺭﺪ ﺔﺒﺴﻨﻟﺎﺑ .ﺓﺮﺷﺎﺒﻣ ﻡﺎﻤﺼﻟﺍ ﺪﻳﺰﺗ ﻲﺘﻟﺍ ﺔﻄﻴﺤﻤﻟﺍ ﺓﺭ
ﻦﻋ70 ﺩﺍﺪﻋﻹﺍ
ّ
ﻛﺮﻣﻭ ﻙﻼﺳﻷﺍ ﻥﻮﻜﺗ ﻥﺃ ﺐﺠﻳ ،ﺔﻳﻮﺌﻣ ﺔﺟﺭﺩ
ﺓﺭﺍﺮﺣ ﺔﺟﺭﺪﻟ ﺔﺒﺳﺎﻨﻣ ﻯﺮﺠﻤﻟﺎﺑ ﺏﺮﺴﺘﻟﺍ ﻊﻧﺎﻣ
ﻲﻓ90 ﺔﻳﻮﺌﻣ
.ﻞﻗﻷﺍ ﻰﻠﻋ
ﺮﻴﻏ ﺕﺎﺤﺘﻔﻟﺎﺑ ﺔﺻﺎﺨﻟﺍ ﻊﻄﻘﻟﺍ ﺮﺻﺎﻨﻋ ﻥﻮﻜﺗ ﻥﺃ ﺐﺠﻳ
ﻭﺃ ﻊﻴﻨﺼﺘﻟﺍ ﺔﻬﺟ ﺎﻫﺮﻓﻮﺗ ﻲﺘﻟﺍ ﻯﺮﺠﻤﻟﺍ ﺓﺩﺍﺪﺳ ﻲﻫ ﺔﻣﺪﺨﺘﺴﻤﻟﺍ
ﺷﻼﻟ ﺩﺎﻀﻣ ﺪﻤﺘﻌﻣ ﻉﻮﻧ ﻦﻣ ﻡﺍﺪﺨﺘﺳﻻﺍ ﻑﻭﺮﻈ ﺐﺳﺎﻨﻣ ،ﻝﺎ
.ﺔﺤﻴﺤﺻ ﺔﻘﻳﺮﻄ ﻪﺒﻴﻛﺮﺗ ﻢﺘﻳﻭ
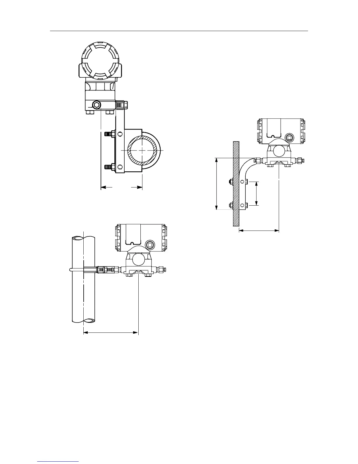
MVS205aa.dsf
71 mm
120 mm
156 mm
ﻞﻜﺸﻟﺍ
3 .
ﺔﺣﻮﻟ ﻞﻣﺎﺣ
MVS205
MVS205a.dsf
I
N
E
X
P
L
O
S
I
V
E
A
T
M
O
S
P
H
E
R
E
-
K
E
E
P
T
I
G
H
T
W
H
E
N
C
I
R
C
U
I
T
A
L
I
V
E
-
-
W
A
R
N
I
N
G
-
90 mm
ﻞﻜﺸﻟﺍ
4 .
ﺏﻮﺒﻧﺃ ﻞﻣﺎﺣ
MVS205
(ﻲﻘﻓﺃ ﺏﻮﺒﻧﺃ)
MVS205ac.dsf
159 mm
ﻞﻜﺸﻟﺍ
5 .
ﺏﻮﺒﻧﺃ ﻞﻣﺎﺣ
MVS205
(ﻲﺳﺃﺭ ﺏﻮﺒﻧﺃ)
6. ﻝﻮﺻﻮﻟﺍ ﺔﻟﻮﻬﺴﻟ ﺮﻌﺸﺘﺴﻣ ﻲﻓ ﻑﺍﺮﻁﻷﺍ ﻰﻟﺇMVS ﻡﺪﺨﺘﺳﺍ ،
ﺱﺎﻘ
ً
ﻴﺳﺍﺪﺳ ﻦﻟﺃ ﺡﺎﺘﻔﻣ3 ﻰﻠﻋ ﻦﻣ ءﺎﻄﻐﻟ ﻚﺒﺸﻣ ﺔﻟﺍﺯﻹ ﻢﻣ
.ﺮﻌﺸﺘﺴﻤﻠﻟ ﻲﻓﺮﻄﻟﺍ ءﺎﻄﻐﻟﺍ ﻚﻔﺑ ﻢﻗ ﻢﺛ .ﺮﻌﺸﺘﺴﻤﻟﺍ
ﺕﺎﻴﻧﻭﺮﺘﻜﻟﺇ ﺱﺃﺭ ﻲﻓ ﺔﻬﺟﺍﻮﻟﺍ ﺮﺋﺍﻭﺩ ﺔﺣﻮﻟ ﺢﻴﺘﺗMVS205
ﻞﻴﺻﻮﺗMVS ﺓﺪﺣﻮﺑROC ﻭﺃFloBoss (ﺎﻬﻨﻣ ﺎﻬﻠﻴﻐﺸﺗﻭ)
ﺔﻠﺻﻭ ﻡﺍﺪﺨﺘﺳﺎﺑ ﺎﻬﻌﻣ ﻞﺻﺍﻮﺘﻟﺍﻭ
ﻙﻼﺳﻷﺍ ﺔﻴﻋﺎﺑﺭ ﺔﻴﻠﺴﻠﺴﺗ
EIA-485 (RS-485).

Other manuals for Emerson MVS205

Related product manuals