EasyManua.ls Logo

Empire DVCD42FP31P-2 - Fireplace Placement Options; Installation Location Types

Empire DVCD42FP31P-2
96 pages
Print Icon
To Next Page IconTo Next Page
To Next Page IconTo Next Page
To Previous Page IconTo Previous Page
To Previous Page IconTo Previous Page
Loading...
36167-1-0316 Page 11
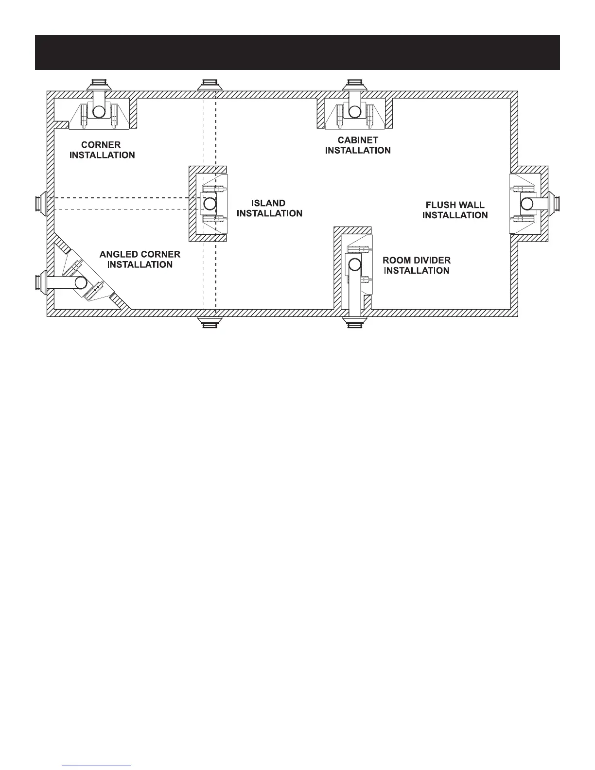
Figure 9
NOTICE


LOCATING FIREPLACE

Table of Contents

Related product manuals