EasyManua.ls Logo

Empire DVCD42FP31P-2 - DVVK-4 RE Vent Kit Installation; Installing Wall Thimble;Firestop Assembly; Cutting Vent Tubes

Empire DVCD42FP31P-2
96 pages
Print Icon
To Next Page IconTo Next Page
To Next Page IconTo Next Page
To Previous Page IconTo Previous Page
To Previous Page IconTo Previous Page
Loading...
36167-1-0316Page 36
DVVK-4RE VENT KIT INSTALLATION INSTRUCTIONS
CAUTION












NOTE: 








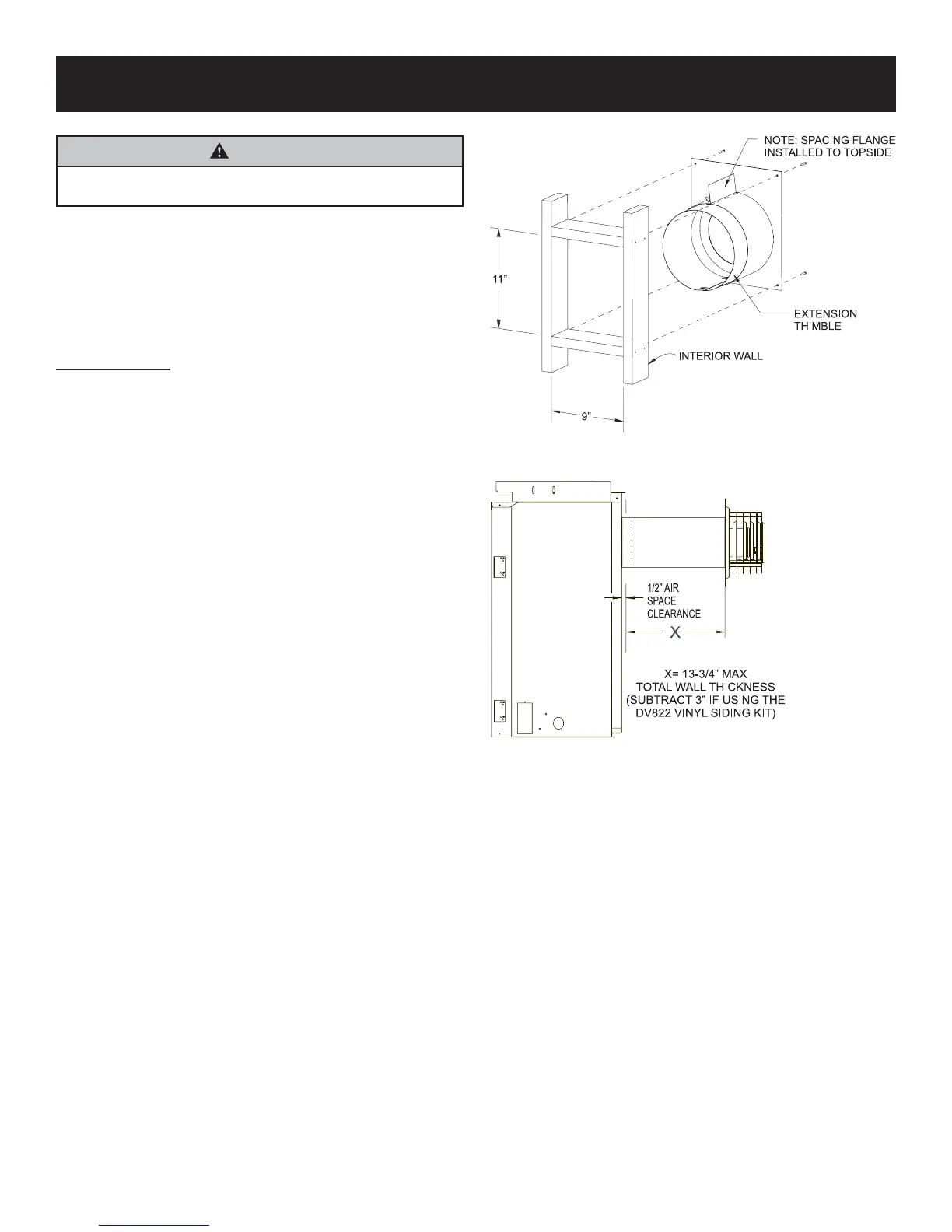
 See Figure 63.

 

 Figure 62)





Figure 62
 
Figure 62


 


Figure 62
Figure 63

This is the most important part of the installation.




 



 



Figures 64 and 65

Table of Contents

Related product manuals