EasyManua.ls Logo

Empire DVCD42FP31P-2 - DVVK-4 RE Vent Kit Assembly Steps; Attaching Outside Mounting Plate; Sealing Flue Outlet Tube

Empire DVCD42FP31P-2
96 pages
Print Icon
To Next Page IconTo Next Page
To Next Page IconTo Next Page
To Previous Page IconTo Previous Page
To Previous Page IconTo Previous Page
Loading...
36167-1-0316 Page 37
 


 



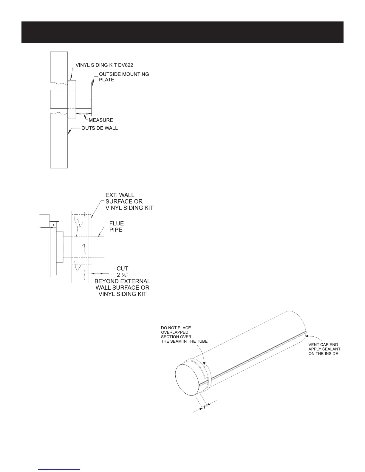
See
Figure 65


 







 


 
Figure 66
 




 

Figure 64
Figure 65
Figure 66
Note:


DVVK-4RE VENT KIT INSTALLATION INSTRUCTIONS (continued)

Table of Contents

Related product manuals