EasyManua.ls Logo

Empire DVCD42FP31P-2 - Framing and Firestop Installation; Install Support Brackets; Install Firestops

Empire DVCD42FP31P-2
96 pages
Print Icon
To Next Page IconTo Next Page
To Next Page IconTo Next Page
To Previous Page IconTo Previous Page
To Previous Page IconTo Previous Page
Loading...
36167-1-0316
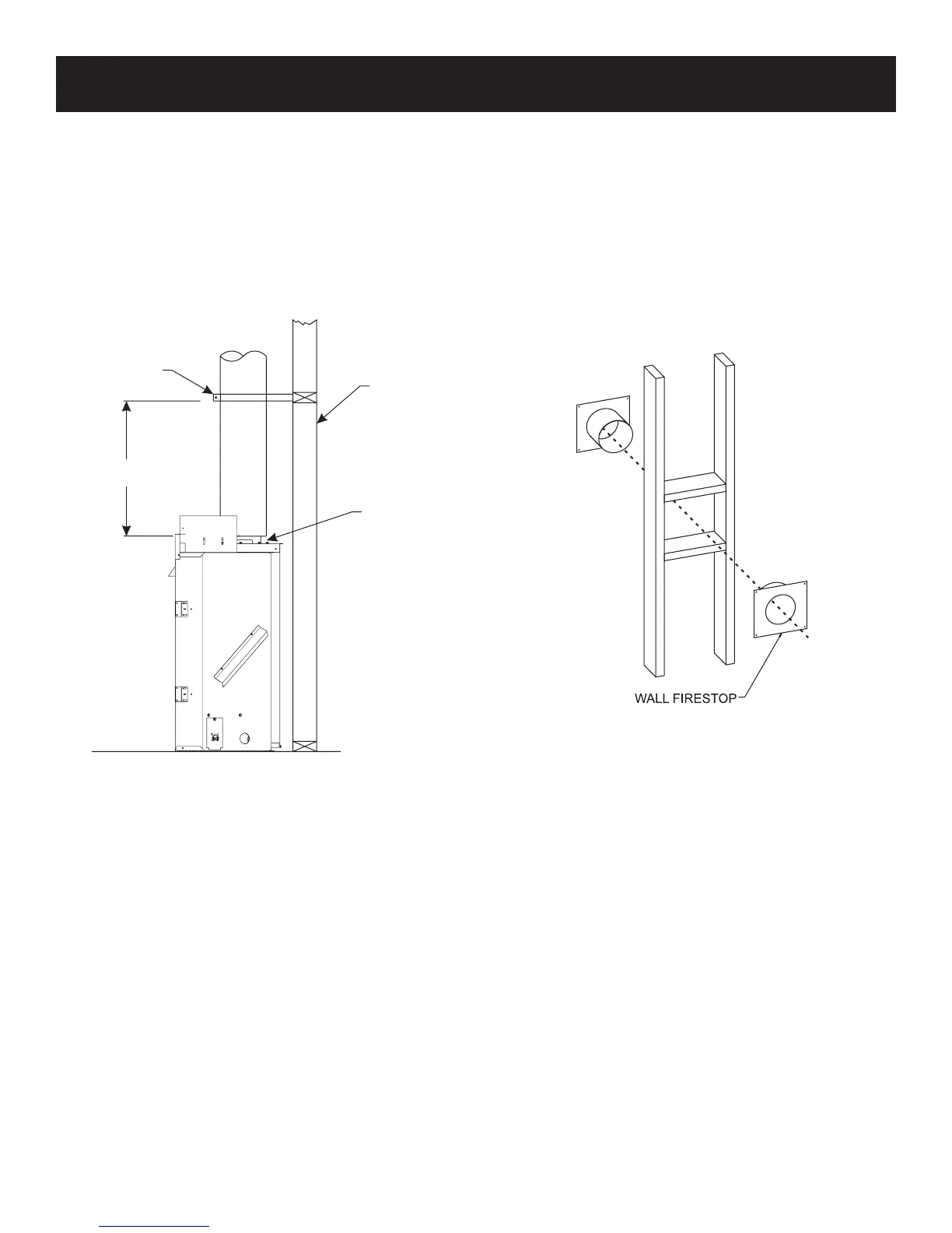
FRAMING AND FINISHING
Install Support Brackets










PIPE STRAP
48”
(1219 MM)
STUD WALL
FLUE OUTLET
TOPOF
FLUE OUTLET
Figure 46
Install Firestops












Figure 47

Table of Contents

Related product manuals