EasyManua.ls Logo

Empire DVCD42FP31P-2 - Top Venting: Installation Examples; Venting Example 1; Venting Example 2

Empire DVCD42FP31P-2
96 pages
Print Icon
To Next Page IconTo Next Page
To Next Page IconTo Next Page
To Previous Page IconTo Previous Page
To Previous Page IconTo Previous Page
Loading...
36167-1-0316 Page 23
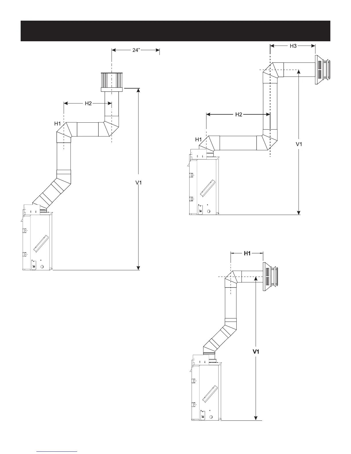
EXAMPLE
H2 = 3ft, H3 = 1ft, Elbow= 3 ft
H2 + H3 = 4ft
(90° + 90° + 90°) = 6ft*
H2 + H3 + Elbows = 10ft
V1 = 21ft
H = 10ft V = 21ft
90°
*The first elbow does not count towards the total.
It is already included in the venting graph.
EXAMPLE
H1 = 2ft
V1 = 20ft
H=2ft V = 20ft
EXAMPLE
H2 = 2ft,
(90° + 90°) = 6ft
H2 + Elbows = 8ft
V1 = 15ft
H = 8ft V = 15ft
90° Elbow = 3ft
24” MINIMUM
CLEARANCE TO
COMBUSTIBLES
Figure 37
Figure 38
Figure 39
VENTING FIREPLACE - TOP (EXAMPLES)

Table of Contents

Related product manuals