EasyManua.ls Logo

ENERVEX Multiple Fireplace - Page 18

ENERVEX Multiple Fireplace
23 pages
Print Icon
To Next Page IconTo Next Page
To Next Page IconTo Next Page
To Previous Page IconTo Previous Page
To Previous Page IconTo Previous Page
Loading...
18
3940011 12.12
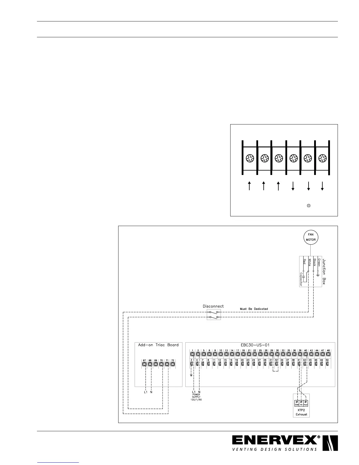
b. Single-Phase Fan
An add-on triac board is included with the EBC 30 control for systems requiring a single-phase fan.
The triac board is connected via a multi plug. Verify this connection is tight before connecting the
fan. Terminal descriptions of the triac board are shown in Fig. 15.
Connect the fan as shown in Fig. 16.
NOTE: Fan is regulating on the nuetral side and connot be connected to other circuits.
67 68 69 70 71 72
L1 N PE L1 N
reg
PE
SUPPLY MOTOR
Fig. 16
Fig. 15